Appartement à vendre - Via Vallone, 6500 Bellinzona
Organiser une visite
Réserver une visite avec Claudio aujourd'hui !
Neue exklusive Wohnung in einer komfortablen und strategischen Lage
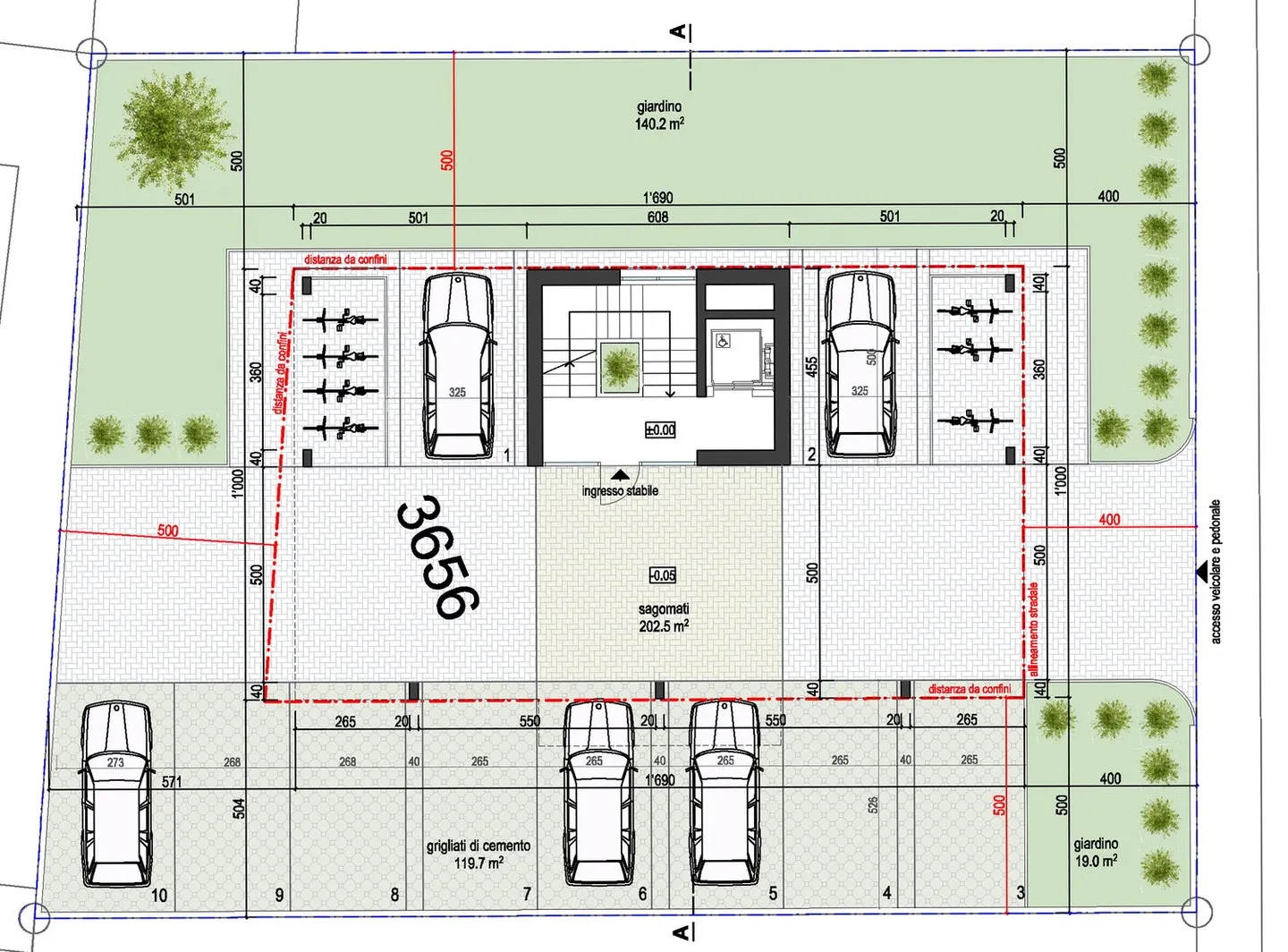
Die Residenza Sila 9, die in der Zone Geretta mit Zugang von der Via Vallone entstehen wird, liegt nur einen Kilometer und einen halben Kilometer von der neuen FFS-Station entfernt und ist nicht weit vom Stadtzentrum entfernt.
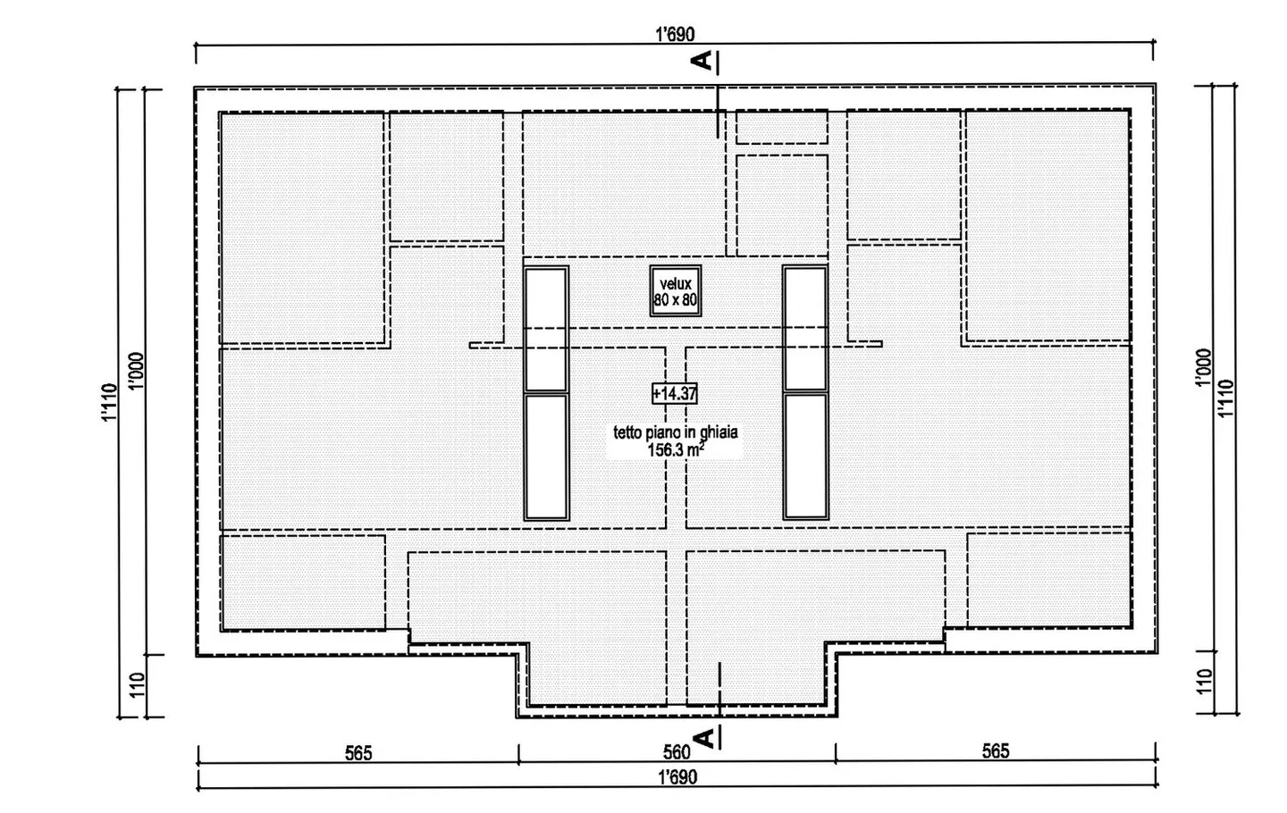
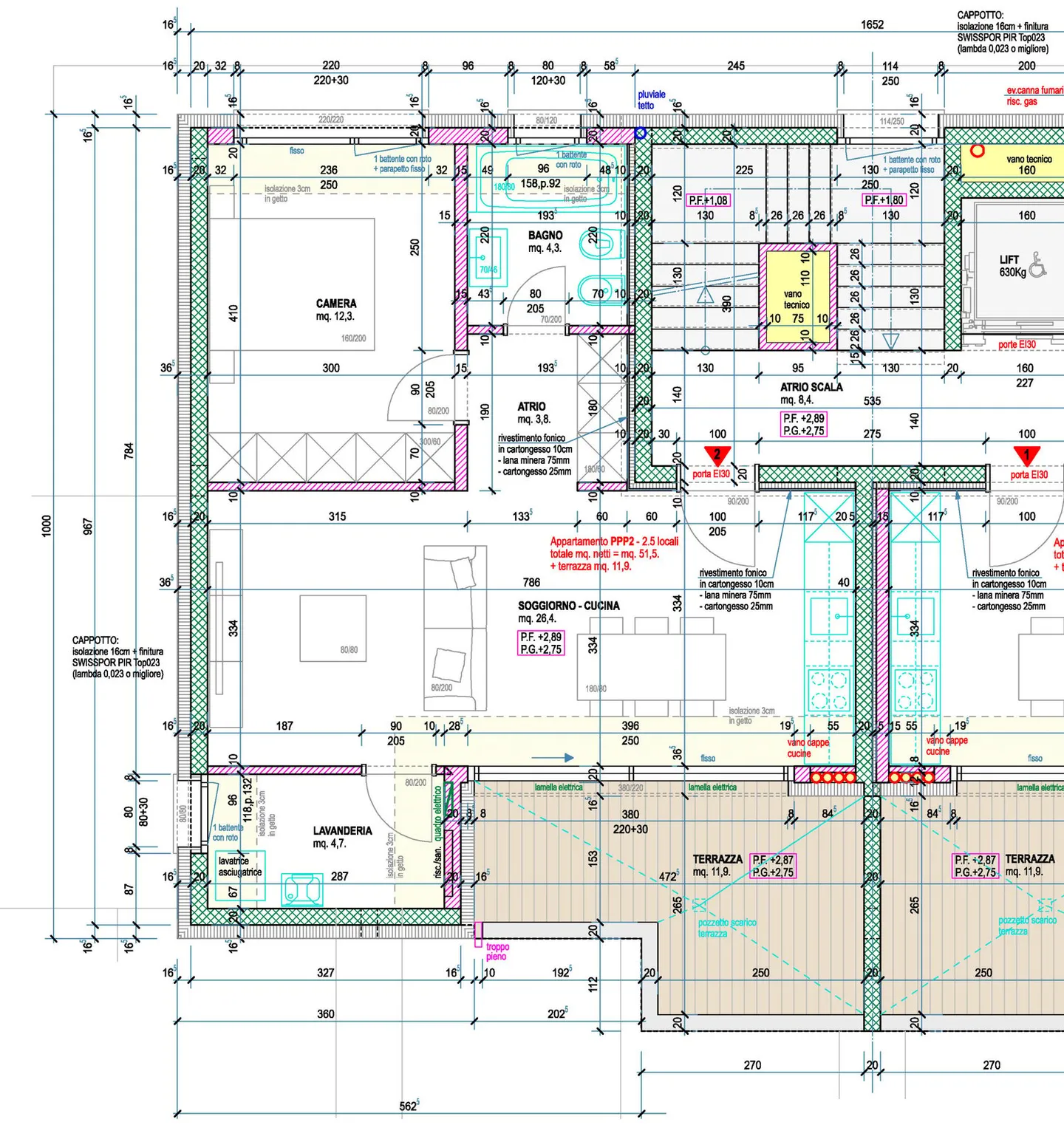
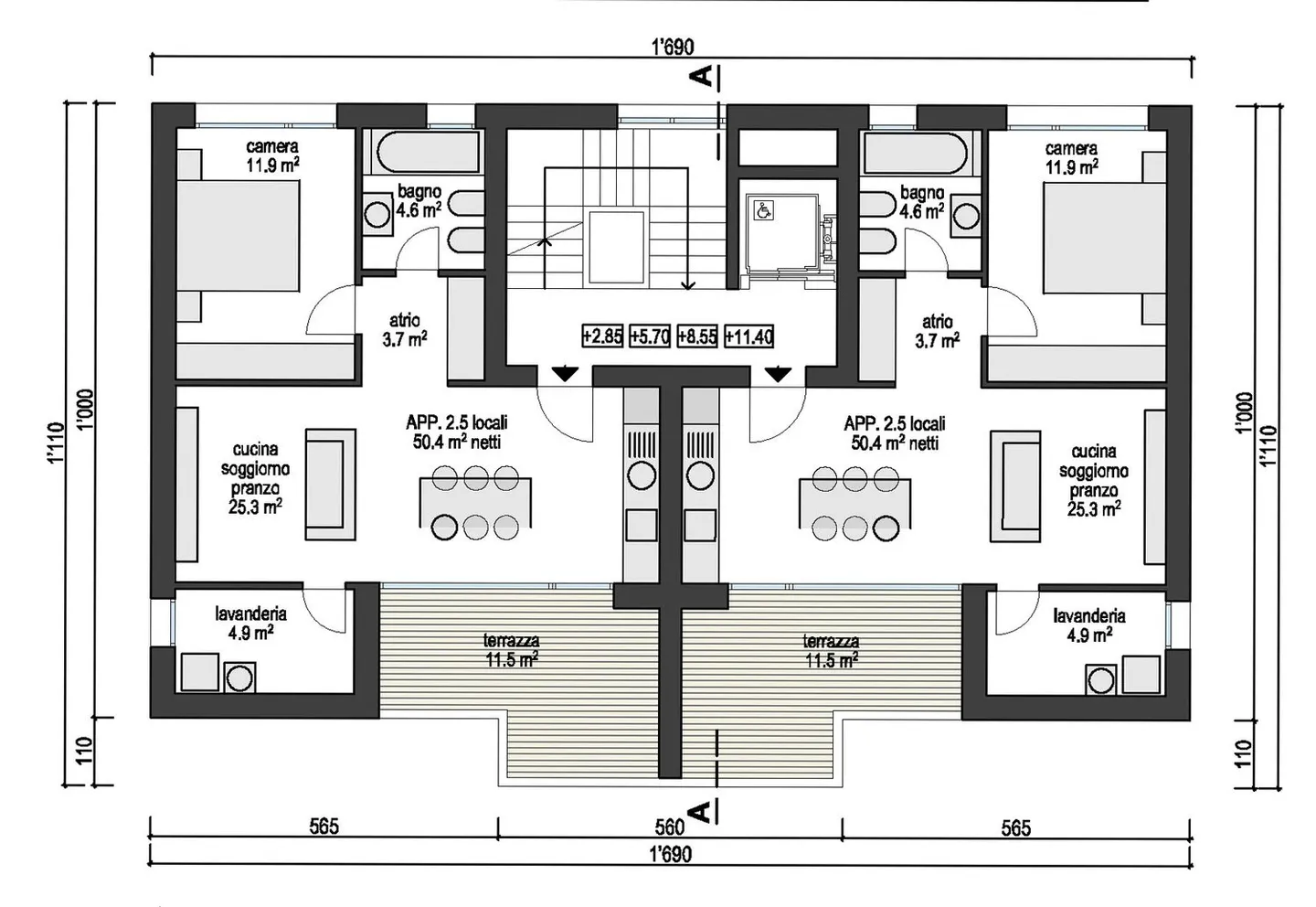
Die Residenz besteht aus nur 8 Wohnungen mit 2 ½ Zimmern, die auf zwei Ebenen verteilt sind und zwischen dem 1. und 4. Stock liegen.
Das Gebäude wird im traditionellen Baustil errichtet, mit Elementen aus Beton und Mauerwerk und mit Wärmedämmung der Fassaden.
Besondere Aufmer...
Détails du bien
- Disponible à partir de
- 28.04.2026
- Pièces
- 2.5
- Année de construction
- 2025
- Surface habitable
- 63 m²
- Étage
- 1er




