Attique à vendre - Via San Giobbe, 6512 Giubiasco
Pourquoi vous aimerez ce bien
Espace de vie de 38 m²
Chambres lumineuses avec fenêtres
Emplacement privilégié près des commodités
Organiser une visite
Réserver une visite aujourd'hui !
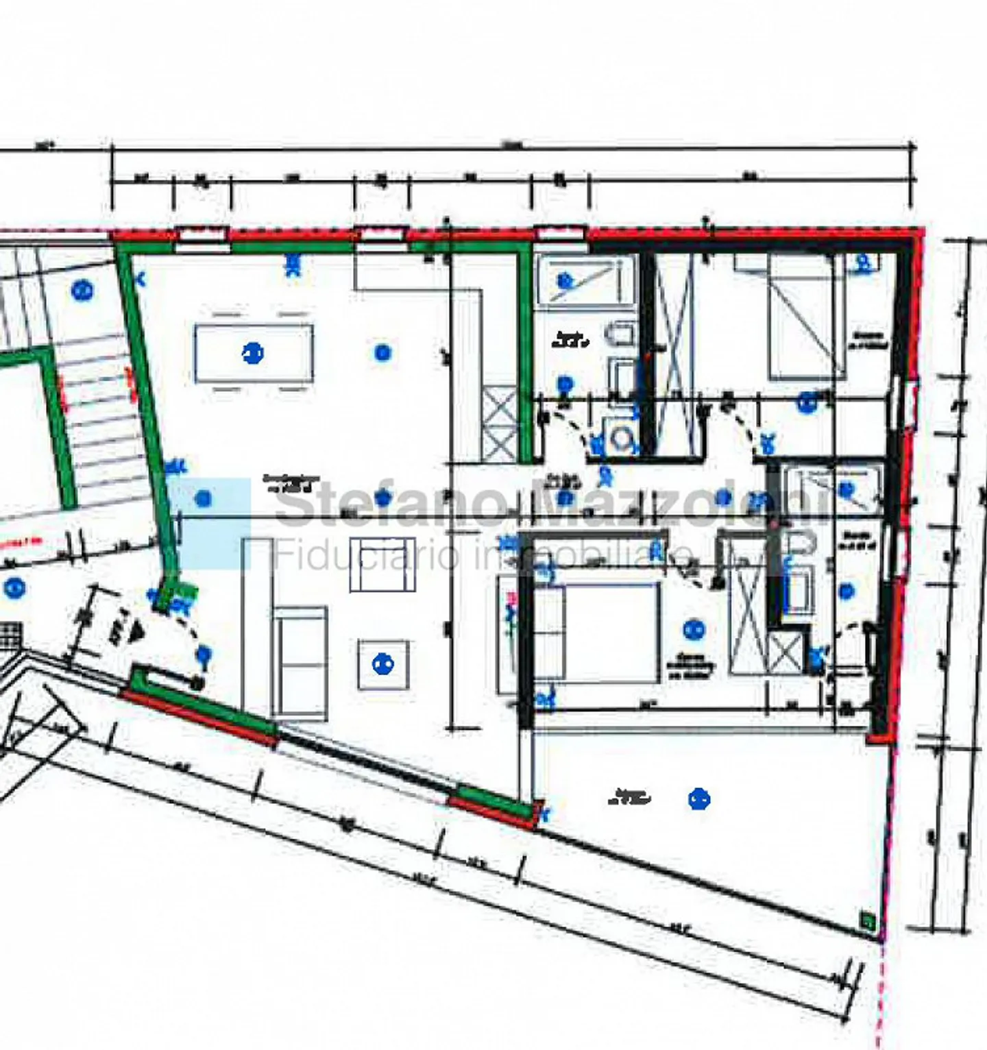
Giubiasco - attic 3 1/2 pièces - 96 m²
Attique élégant de 3,5 pièces en nouvelle construction à Giubiasco – Confort, Luminosité et Position Stratégique
À Giubiasco, dans une position privilégiée à quelques pas de la place principale et du centre-ville, nous proposons à la vente un attique moderne de 3,5 pièces avec une surface habitable de 96 m², situé au dernier étage d'une résidence de nouvelle construction, actuellement en cours d'achèvement. La propriété se distingue par des espaces spacieux et bien répartis, rehaussés par de gran...
Détails du bien
- Disponible à partir de
- Sur accord
- Pièces
- 3.5
- Surface habitable
- 96 m²



