Attique à vendre - Via Parallela, 6710 Biasca
Pourquoi vous aimerez ce bien
Fenêtres à triple vitrage
Chauffage par le sol
Buanderie dans l'appartement
Organiser une visite
Réserver une visite avec Claudio aujourd'hui !
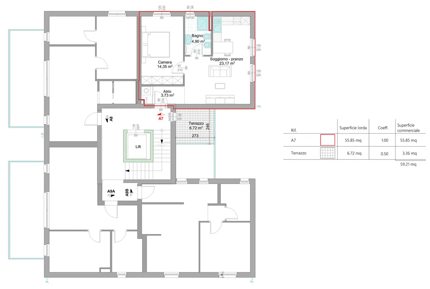
Nouvel appartement au dernier étage
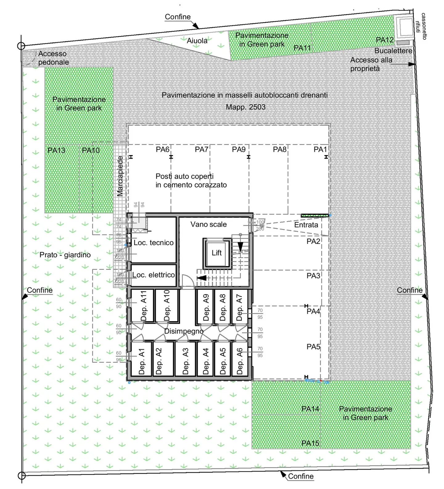
Zone résidentielle en deuxième ligne du centre dans un emplacement confortable et bien desservi.
La structure du bâtiment est de type "massif" avec des éléments de construction en briques et en béton armé, les murs d'enceinte sont isolés avec une isolation, les sols sont en CA, les fenêtres ont un triple vitrage thermique.
Nouvelle construction en architecture moderne, qui est dans la phase finale d'achèvement, composée de 10 appartements de 2,5 pièces et 1 appartement de 4,5 pièces, répartis entr...
Détails du bien
- Disponible à partir de
- 27.10.2025
- Pièces
- 2.5
- Année de construction
- 2021
- Surface habitable
- 60 m²
- Étage
- 3ème




