Appartement à vendre - Via Parallela, 6710 Biasca
Pourquoi vous aimerez ce bien
Fenêtres à triple vitrage
Espaces de vie confortables
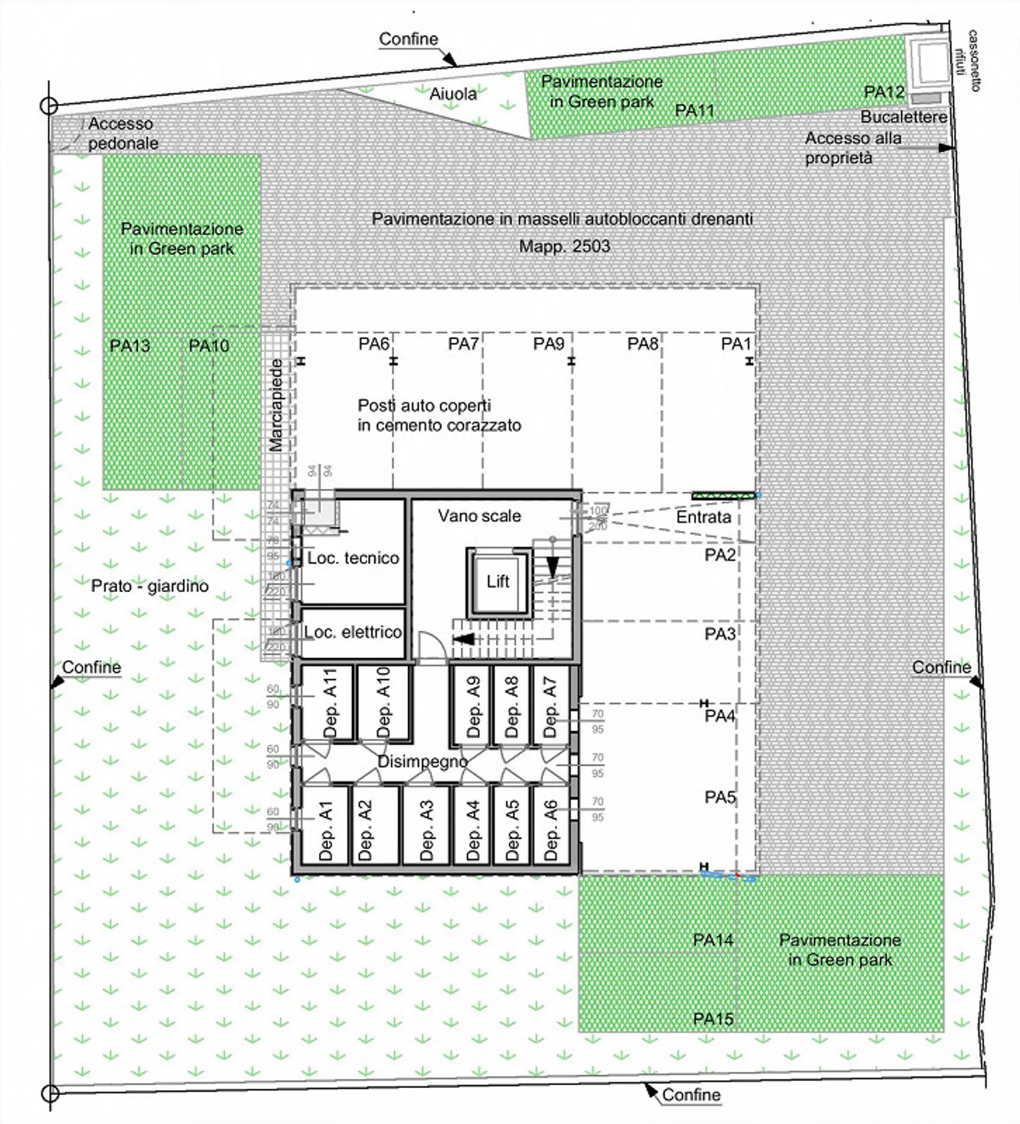
Accès à l'ascenseur pour cave
Organiser une visite
Réserver une visite avec Orari aujourd'hui !
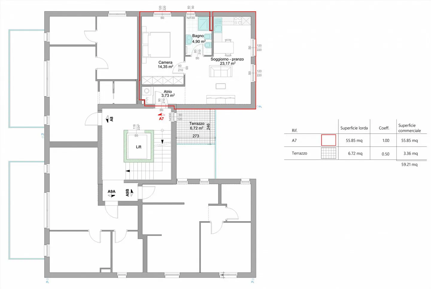
Nouvel appartement en penthouse dans un quartier pratique et stratégique
Zone résidentielle à deux pas du centre dans un emplacement pratique et bien desservi.
Structure du bâtiment de type "massif" avec des éléments de construction en terre cuite et en béton armé, murs périmétriques isolés avec un manteau, dalles en CA, fenêtres avec triple vitrage isolant.
Nouvelle construction moderne en phase d'achèvement composée de 10 appartements de 2,5 pièces et 1 appartement de 4,5 pièces répartis entre le 1er et le 3ème étage. Dépôts-caves et places de parking au rez-de-chaus...
Détails du bien
- Disponible à partir de
- Sur accord
- Pièces
- 2.5
- Surface habitable
- 60 m²
- Étage
- 3ème



