Appartement meublé à vendre - Via Cadempina, 6814 Cadempino
Pourquoi vous aimerez ce bien
Espace de vie spacieux
Grande terrasse privée
Caractéristiques écoénergétiques
Organiser une visite
Réserver une visite avec Bernasconi aujourd'hui !
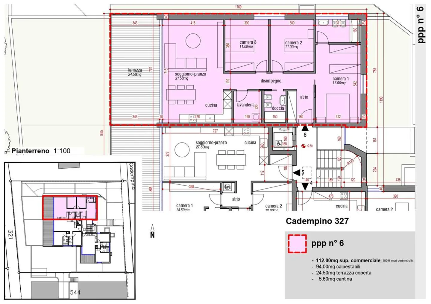
NOUVEAU : 4,5 pièces avec grande terrasse
Vous cherchez un appartement moderne avec une grande terrasse à Cadempino, dans un quartier calme ?
Nous vous présentons un nouveau bâtiment en phase de construction, composé de 6 appartements avec ascenseur et grandes terrasses privées. Il est situé dans une zone de confort et offre tranquillité et accès facile aux services.
L'appartement est situé au premier étage et peut être personnalisé. Il comprend :
- Un espace de vie spacieux avec un salon et une cuisine ouverte avec un accès direct à la ...
Détails du bien
- Disponible à partir de
- Sur accord
- Pièces
- 3
- Année de construction
- 2026
- Surface habitable
- 112 m²
- Étages du bâtiment
- 1



