Appartement en terrasse à vendre - Via Bricola, 6802 Rivera
Pourquoi vous aimerez ce bien
Terrasse privée pour détente
Conception écoénergétique
Proche des transports publics
Organiser une visite
Réserver une visite avec Orari aujourd'hui !
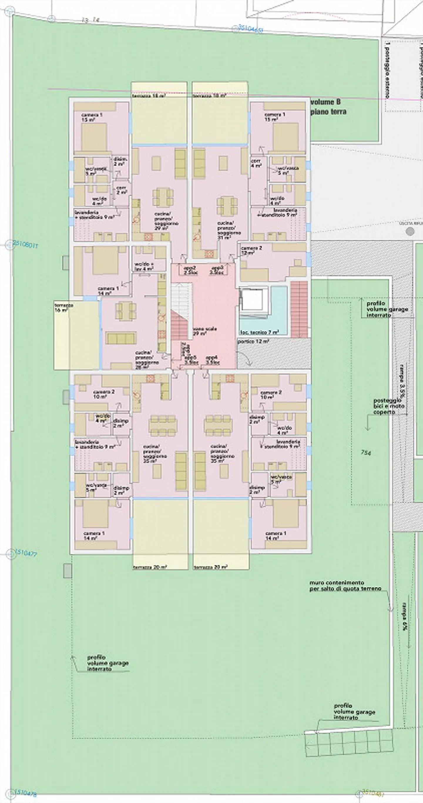
Nouvel Appartement au Dernier Étage avec une Belle Terrasse
La Résidence Bricola sera située au cœur de Rivera, non loin de Splash & SPA, du funiculaire du Monte Tamaro et de l'entrée de l'axe autoroutier.
Le bâtiment est situé à côté d'une grande zone verte, et en quelques minutes à pied, vous pouvez rejoindre l'arrêt de bus postal et la gare FFS.
Le bâtiment prévoit la réalisation de deux structures indépendantes de 3 étages sur deux niveaux différents qui distribuent les appartements entre le rez-de-chaussée et le deuxième étage.
Le garage entièremen...
Détails du bien
- Disponible à partir de
- Sur accord
- Pièces
- 3.5
- Année de construction
- 2026
- Surface habitable
- 93 m²
- Étage
- 2ème




