Appartement meublé à vendre - Via Bironico, 6804 Bironico
Pourquoi vous aimerez ce bien
Rénové complètement en 2022
Terrasse et jardin privés
Zone calme avec parking gratuit
Organiser une visite
Réserver une visite aujourd'hui !
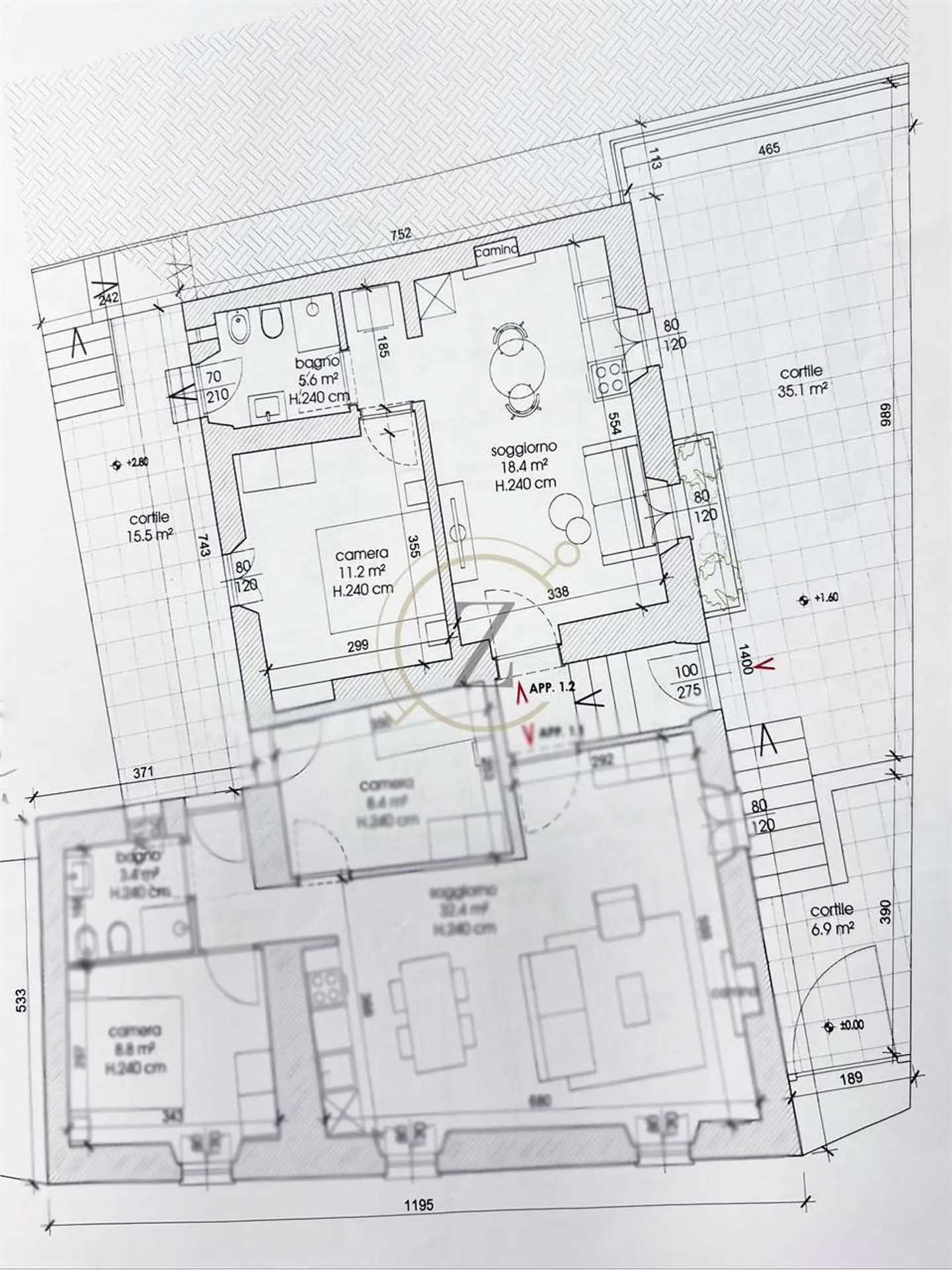
Bironico - bel appartement de 2,5 pièces
À Bironico, dans un quartier très calme, nous vendons un appartement de 2,5 pièces qui a été entièrement rénové en 2022. L'appartement a une surface de vente d'environ 44 m² et est réparti comme suit :
Grand salon avec cuisine ouverte, chambre, salle de bain avec douche.
Ce bien immobilier dispose également d'une grande véranda et d'une buanderie privée ainsi que d'une terrasse privée.
Un jardin/un potager devant la maison est disponible.
À quelques mètres de la maison, il y a un parking municip...
Détails du bien
- Disponible à partir de
- Sur accord
- Pièces
- 2.5
- Surface habitable
- 44 m²
- Surface du terrain
- 80 m²
- Étage
- 1er




