Appartement à vendre - Rue Des Prés Du Moulin, 1920 Martigny
Pourquoi vous aimerez ce bien
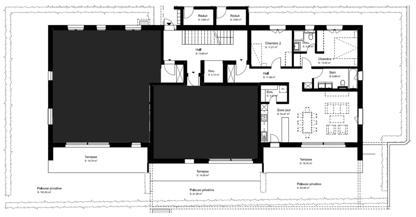
Terrasse et pelouse privées
Système de chauffage écologique
Finitions personnalisables disponibles
Organiser une visite
Réserver une visite avec Lucie aujourd'hui !
DESCRIPTIF
NOUVELLE PROMOTION à Martigny – Rue des Prés-du-Moulin
BESTA Immobilier SA vous propose cette nouvelle réalisation située dans un quartier calme, résidentiel, proche de la gare de Martigny et près du bord de la Dranse pour vos ballades en plein air.
Caractéristiques de l'immeuble :
* Emplacement idéal à la Rue des Prés-du -Moulin, proche de la gare, des entrées d'autoroutes, des commerces tout en étant dans une rue calme et assurant un accès facile à la nature environnante.
* L'immeuble...
Détails du bien
- Disponible à partir de
- Sur accord
- Pièces
- 3.5
- Année de construction
- 2026
- Étage
- Rez




