Appartement à vendre - Ruchholzstrasse, 4103 Bottmingen
Pourquoi vous aimerez ce bien
Hobby room chauffé et lumineux
Grand balcon orienté ouest
Quartier familial et convivial
Organiser une visite
Réserver une visite avec Dominique aujourd'hui !
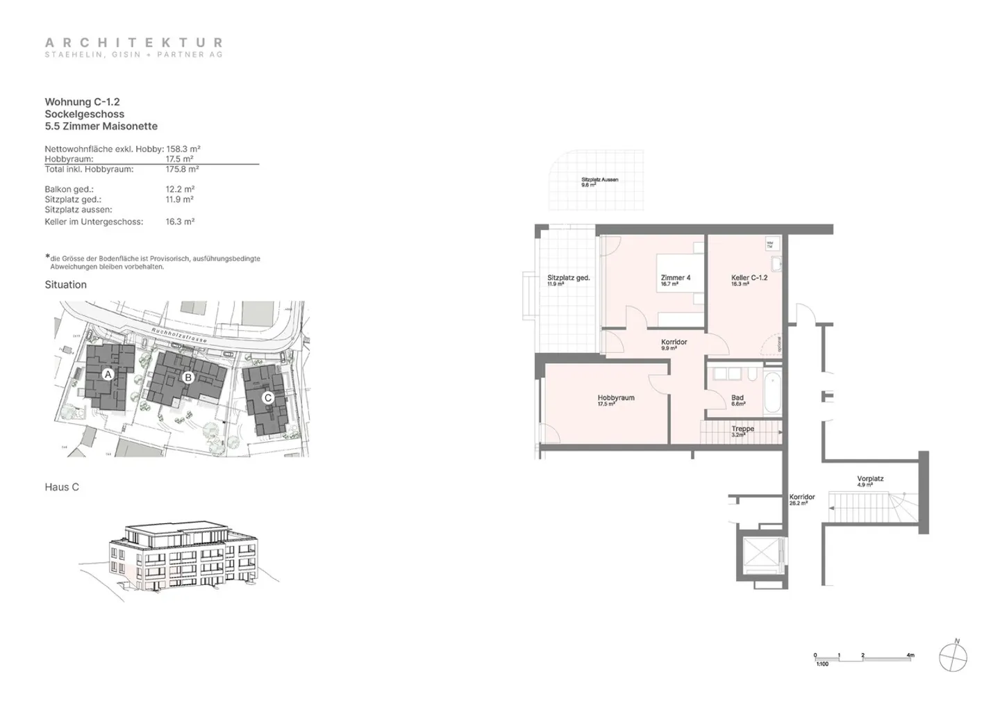
Bienvenue dans votre nouvel appartement de rêve à Ruchholzstrasse ! Cet élégant appartement de 3,5 pièces peut également être utilisé comme un appartement de 4,5 pièces avec la pièce hobby aménagée. Il vous offre 151 m² de pur confort de vie sur les niveaux rez-de-chaussée et sous-sol. Parfait pour les familles à la recherche d'un foyer moderne et calme. L'appartement offre au sous-sol : * une pièce hobby aménagée et chauffée avec lumière du jour et fenêtres avec porte-fenêtre * une chambre ou b...
Détails du bien
- Disponible à partir de
- Sur accord
- Pièces
- 5.5
- Année de construction
- 2026
- Surface habitable
- 176 m²
- Surface utilisable
- 161 m²
- Surface de la terrasse
- 9.6 m²
- Surface du balcon
- 24.1 m²
- Étage
- Rez
- Étages du bâtiment
- 3



