Appartement à vendre - Ruchholzstrasse, 4103 Bottmingen
Pourquoi vous aimerez ce bien
Hobby room lumineux avec fenêtres
Grand balcon orienté ouest
Quartier familial et calme
Organiser une visite
Réserver une visite avec Dominique aujourd'hui !
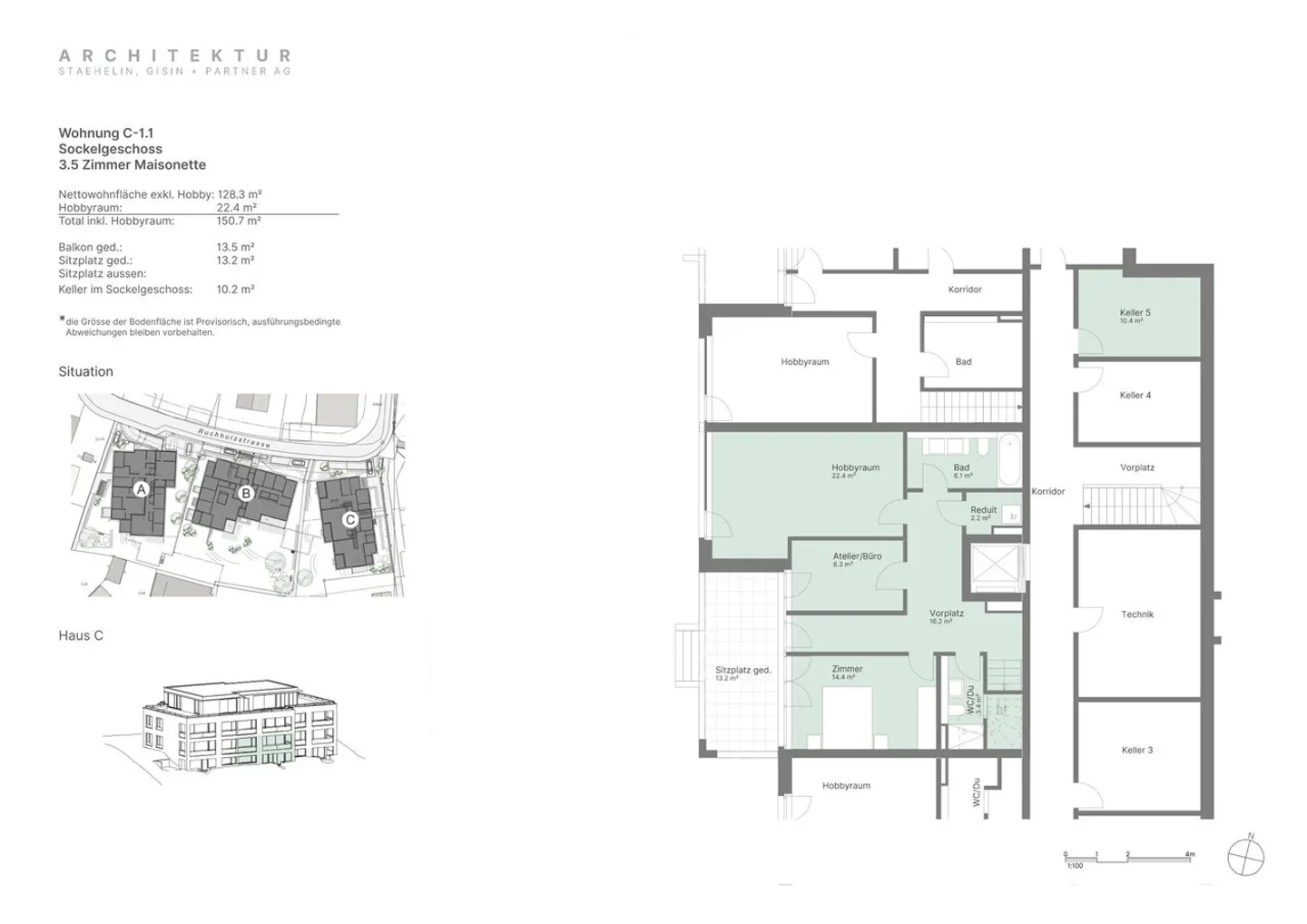
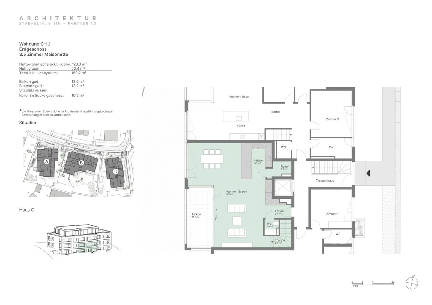
Nouvel appartement en maisonette au rez-de-chaussée dans un emplacement recherché (c-1.1)
Bienvenue dans votre nouvel appartement de rêve sur Ruchholzstrasse ! Cet élégant appartement de 3,5 pièces peut également être utilisé comme un appartement de 4,5 pièces avec la chambre hobby convertie. Il vous offre 151 m² de pur confort de vie sur les niveaux de rez-de-chaussée et de sous-sol. Parfait pour les familles à la recherche d'un foyer moderne et calme. L'appartement offre ce qui suit au niveau du sous-sol : * Une chambre hobby convertie et chauffée avec lumière naturelle, fenêtres e...
Détails du bien
- Disponible à partir de
- 03.11.2025
- Pièces
- 3.5
- Année de construction
- 2026
- Surface habitable
- 151 m²
- Surface utilisable
- 161 m²
- Étage
- Rez
- Étages du bâtiment
- 3



