Appartement à vendre - Ruchholzstrasse, 4103 Bottmingen
Pourquoi vous aimerez ce bien
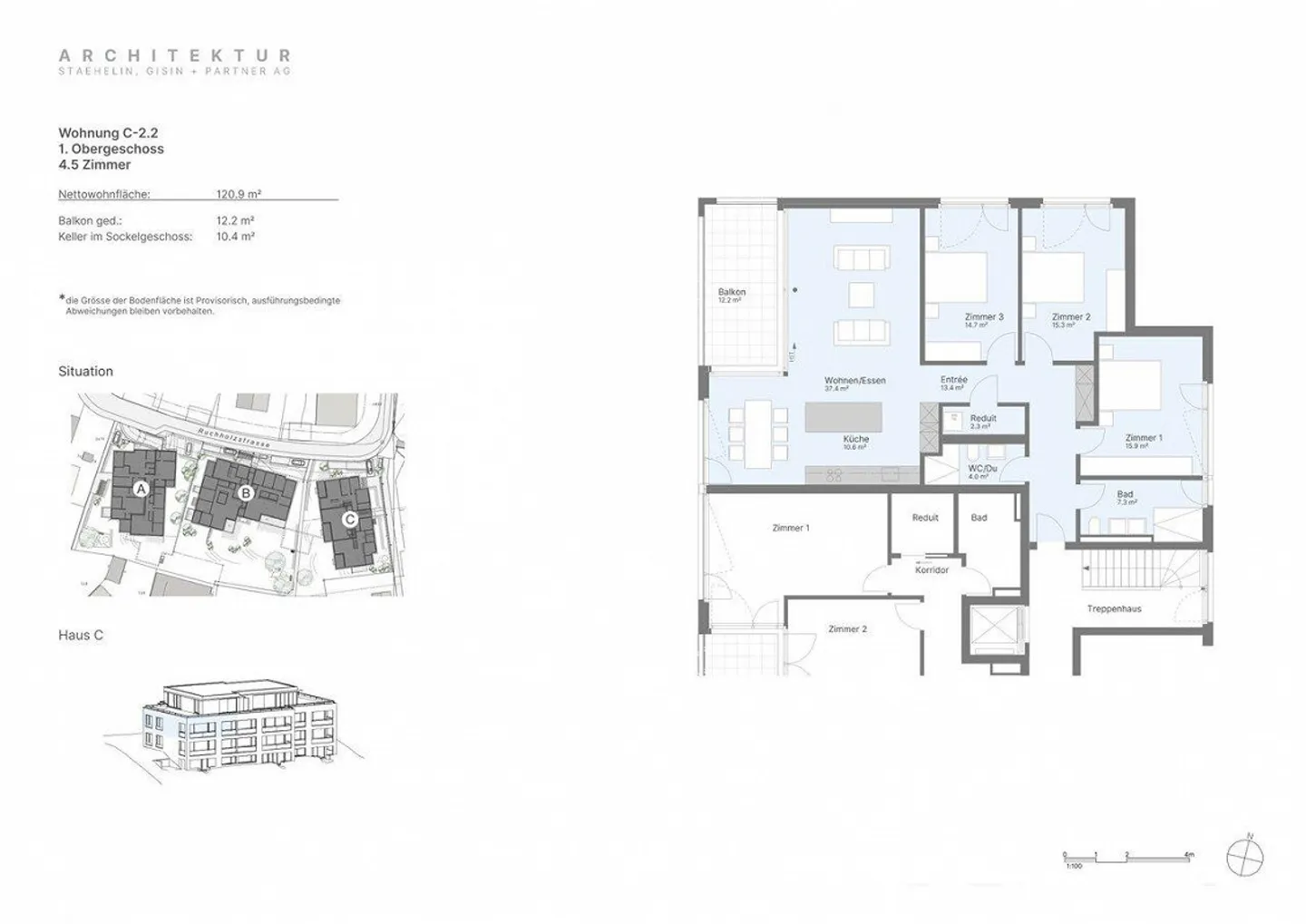
Espace de vie spacieux de 121 m²
Grand balcon nord-ouest
Quartier familial convivial
Organiser une visite
Réserver une visite avec Dominique aujourd'hui !
Appartement neuf lumineux et calme dans un bel emplacement n-o (c-2.2)
Bienvenue dans votre nouvel appartement de rêve sur la Ruchholzstrasse ! Cet appartement moderne et élégant de 4,5 pièces vous offre environ 121 m² de pur confort de vie au 1er étage avec un grand balcon. Parfait pour les couples, les familles à la recherche d'un foyer moderne et calme, ou une offre idéale pour vivre et travailler.
À l'étage supérieur, il y a :
* l'entrée avec vestiaire
* deux salles de bains avec douche et WC
* trois chambres
* salon-salle à manger lumineux avec cuisine ouverte
* be...
Détails du bien
- Disponible à partir de
- 03.11.2025
- Pièces
- 4.5
- Année de construction
- 2026
- Surface habitable
- 121 m²
- Étage
- 1er
- Étages du bâtiment
- 3



