Appartement à vendre - Route Du Lac, 1026 Denges
Pourquoi vous aimerez ce bien
Charme d'une bâtisse historique
Cuisine ouverte moderne
Balcon spacieux de 19m2
Organiser une visite
Réserver une visite avec Joëlle aujourd'hui !
A 8' de Morges, dans le charmant village de Denges, transformation d'une bâtisse existante qui comprendra 7 lots.
VISITES EGALEMENT LE WEEK-END
PERMIS EN FORCE
Vous serez séduit par cette magnifique promotion dans une bâtisse datant de env. 1800. Mariage entre l'ancien et le moderne, poutres apparentes
Début des travaux: dernier trimestre 2025
Vente à terme avec fonds propres versés chez le notaire
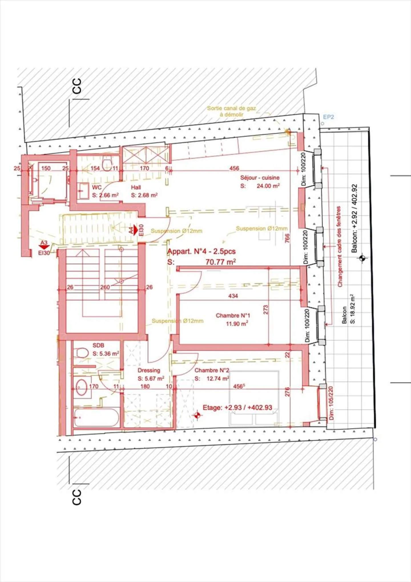
1er étage :
Appartement 3.5 pièces de 82m2 nets et 92m2 pondérés - lot 4:
Hall d'entrée avec pende...
Détails du bien
- Disponible à partir de
- Sur accord
- Pièces
- 3.5
- Places de parking extérieures
- 1
- Année de rénovation
- 2025
- Surface habitable
- 82 m²
- Étage
- 1er
- Étages du bâtiment
- 2


