Appartement à vendre - Route de Brent, 1817 Brent
Pourquoi vous aimerez ce bien
Rénovation de qualité
Quartier résidentiel calme
Panneaux photovoltaïques
Organiser une visite
Réserver une visite avec Serhat aujourd'hui !
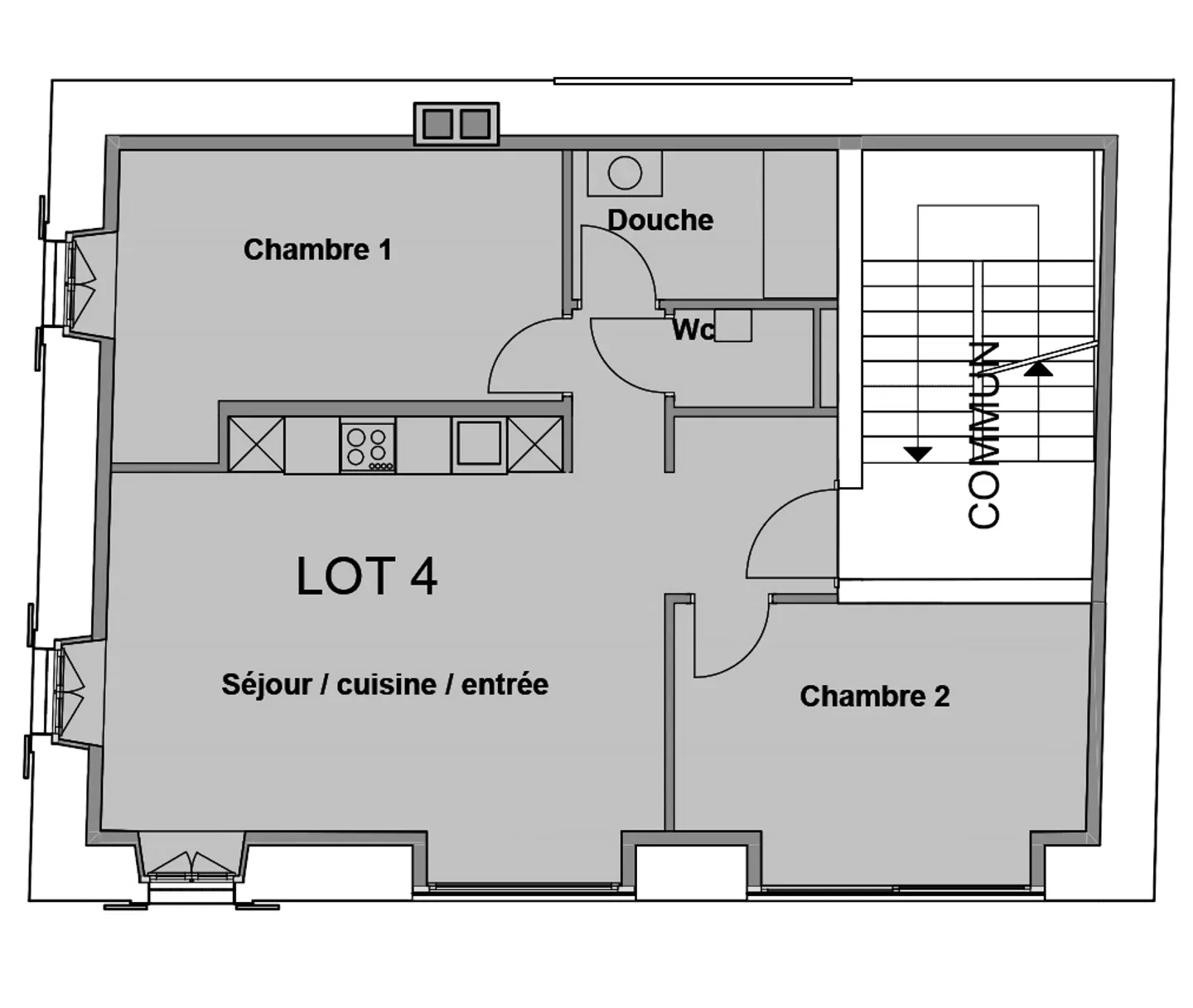
Appartement de 3,5 pièces avec belle vue - Maison RénovéeSitué dans un quartier calme et résidentiel, cet appartement bénéficie d'un cadre de vie agréable, offrant confort et tranquillité.
Description du bien :
* Hall d'entrée
* Cuisine ouverte sur un spacieux séjour.
* 2 chambres lumineuses.
* Salle de douche.
* WC séparé.
* Place de parc extérieure privative à Fr. 20'000.-- en plus du prix de vente.
Points forts :
* Rénovation complète et de qualité dans toute la maison.
* Emplacement calme, proche des ...
Détails du bien
- Disponible à partir de
- Sur accord
- Pièces
- 3.5
- Année de construction
- 1869
- Année de rénovation
- 2026
- Surface habitable
- 65 m²
- Étage
- 2ème
- Étages du bâtiment
- 3




