Appartement à vendre - Rosengartenstrasse, 8555 Müllheim Dorf
Pourquoi vous aimerez ce bien
Conversion villa historique
Parc arboré
Chauffage durable
Organiser une visite
Réserver une visite aujourd'hui !
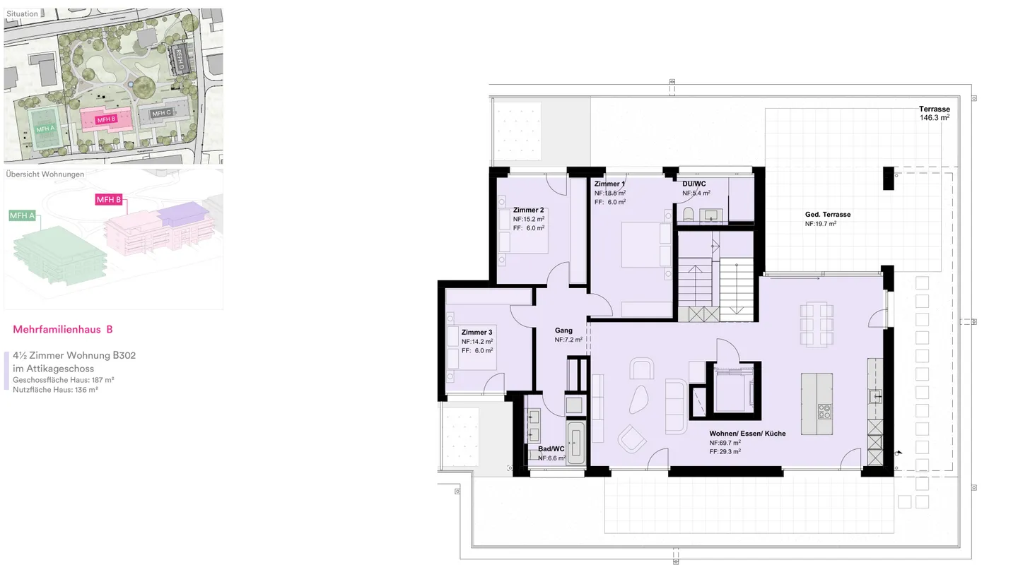
Eigentumswohnungen Rosengarten
28 Eigentumswohnungen
Das Projekt Rosengarten besteht aus einer denkmalgeschützten Villa, Baujahr 1868, einer angrenzenden Stallung und einer grossen Wiese. Die Villa wird sanft saniert und die Stallung wird zu 4 Reihenhäusern umgebaut, welche gemietet werden können. Auf der grossen Wiese werden zwei Mehrfamilienhäuser mit Eigentumswohnungen und ein Mehrfamilienhaus mit Mietwohnungen erstellt.
Das parkähnliche Gelände ist vor allem im Nordwesten und Westen mit stattlichen Bäumen begrenzt und in de...
Détails du bien
- Disponible à partir de
- Sur accord
- Pièces
- 4.5
- Salles de bain
- 2
- Année de construction
- 2024
- Surface habitable
- 136 m²
- Étage
- 3ème



