Appartement à vendre - Place Du Bourg-De-Four, 1204 Genève
Pourquoi vous aimerez ce bien
Emplacement central exceptionnel
Grand espace de vie
Charmant parquet en bois
Organiser une visite
Réserver une visite avec Charles-Henry aujourd'hui !
Élégance et charme au cœur de la vieille ville
Élégance et charme au cœur de la vieille ville
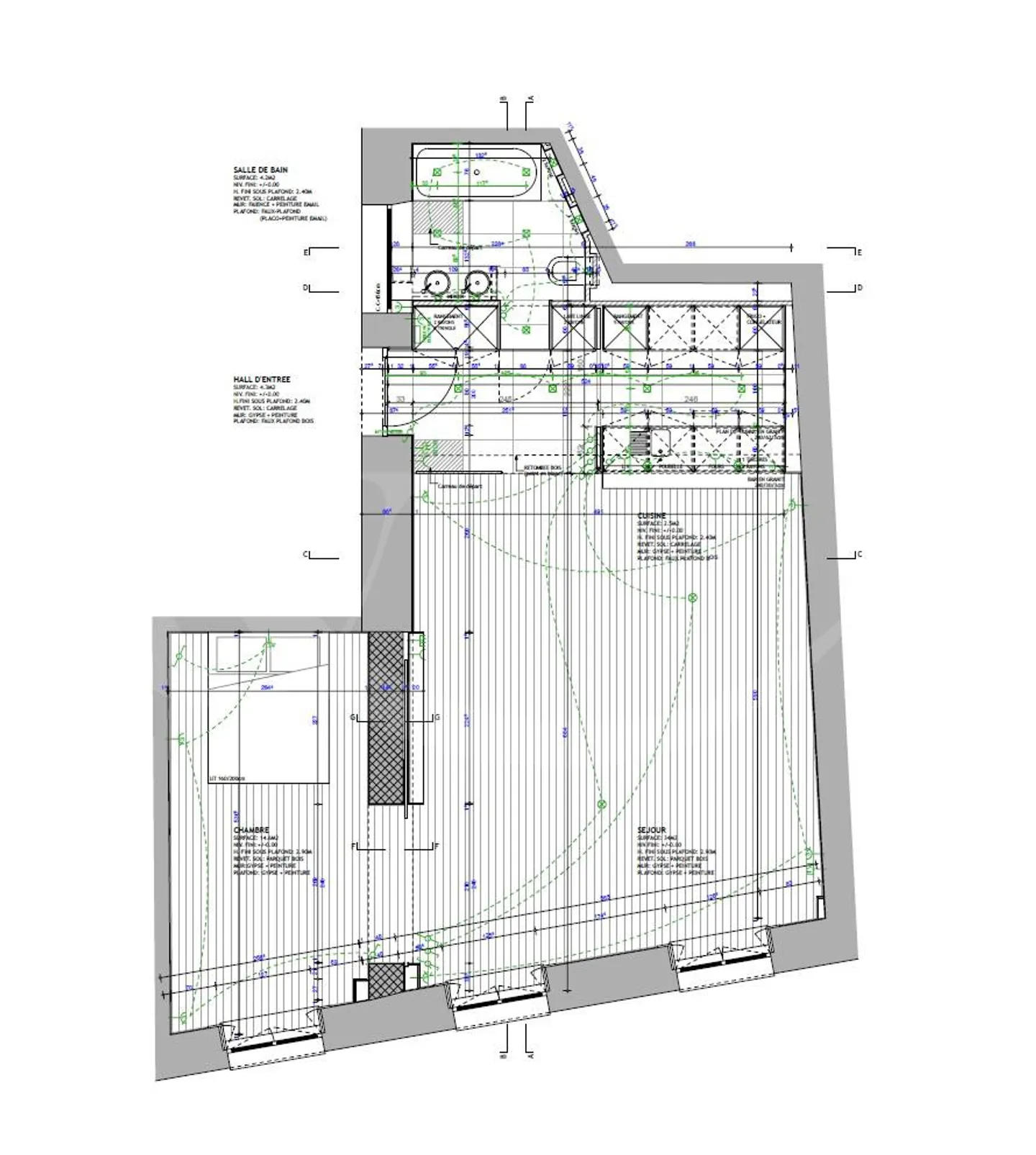
Emplacement exceptionnel au cœur de la vieille ville, à deux pas de la place Bourg-de-Four
Appartement de 79 m² au 1er étage avec ascenseur
Grand salon de 40 m², ancien parquet et cuisine ouverte
Chambre lumineuse de 15 m²,
Salle de bain avec baignoire et double lavabo
Chambre de toit lumineuse
Proche du parc des Bastions, de l'université et du quartier bancaire ou de la Rive
Parking Saint-Antoine à seulement deux minutes à pied, abonnements résiden...
Détails du bien
- Disponible à partir de
- Sur accord
- Pièces
- 3
- Surface habitable
- 79 m²



