Appartement à vendre - Oberdorfstrasse, 3920 Zermatt
Pourquoi vous aimerez ce bien
Vues imprenables sur le Cervin
Architecture alpine moderne
Terrasses spacieuses pour se détendre
Organiser une visite
Réserver une visite avec Thomas aujourd'hui !
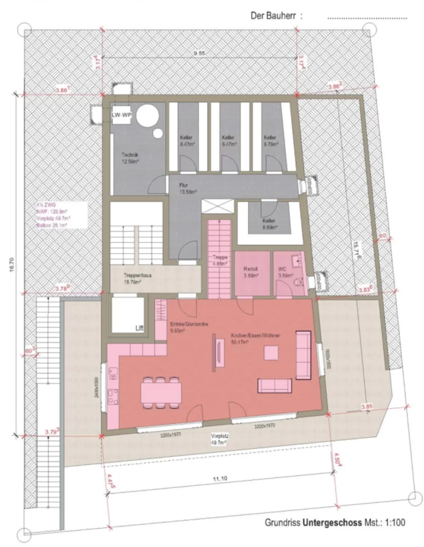
Projet de nouvelle construction de première classe à Zermatt Hôtel ou 4 appartements en duplex - Résidence principale - Résidence principale
En tant que chalet complet, hôtel ou appartements individuels
Le nouvel immeuble, un véritable bijou, est situé au cœur du pittoresque village de montagne valaisan de Zermatt, où les montagnes racontent des histoires et l'air est plein d'inspiration. Cet emplacement exquis est difficile à décrire avec des mots. Seules cinq minutes à pied vous séparent du cœur vibrant du village et tout aussi proche, vous pouvez rejoindre le téléphérique Zermatt-Furri, qui vous emmène dans des aventures inoubliabl...
Détails du bien
- Disponible à partir de
- 31.01.2027
- Année de construction
- 2026
- Surface habitable
- 770 m²
- Surface utilisable
- 770 m²
- Étages du bâtiment
- 4



