1 / 8

Attique à vendre - Müliacker, 8197 Rafz

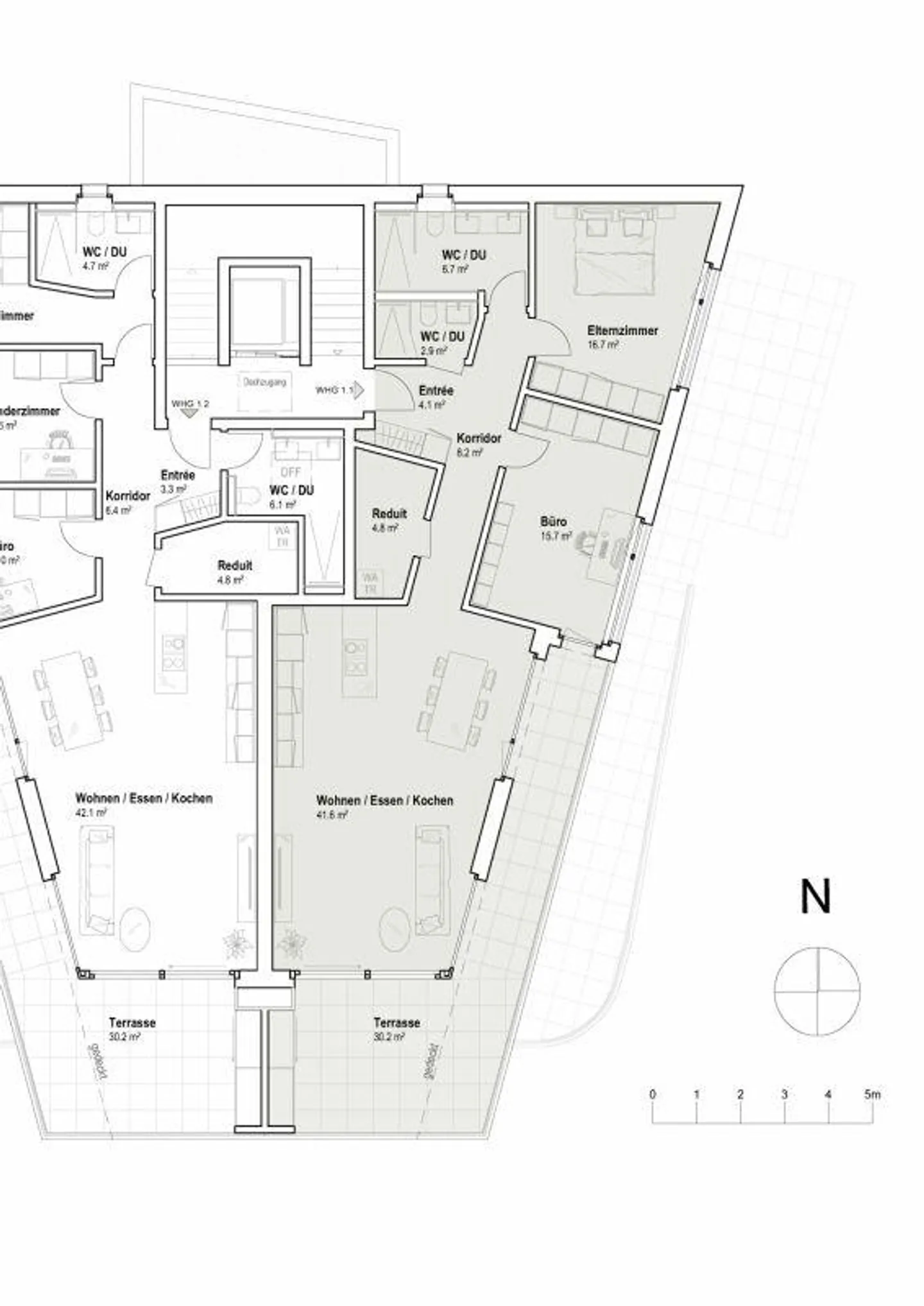
3.5 pièces • 100 m² • 1er étage
CHF 995’000.-
CHF 9’950 m²

Pourquoi vous aimerez ce bien

Espace de vie lumineux

Emplacement calme près de la nature

Accès par ascenseur à tous les étages

Organiser une visite

Réserver une visite avec Nina aujourd'hui !

Nina Winter
IT3 Treuhand + Immobilien AG
Cette description a été traduite automatiquement depuis Allemand.

Appartement penthouse exclusif avec vue sur rafz

Dans le paisible Rafz, dans un quartier résidentiel populaire en hauteur, le projet résidentiel exclusif Müliacker est en cours de développement avec quatre condominiums exclusifs.

À la limite nord de la commune de Rafz, la rue de quartier apaisée serpente entre les vignes jusqu'à la forêt. Le projet au Müliacker est donc calme et entouré de verdure, tandis que le centre du village avec ses commerces, son arrêt de bus et la gare est également accessible à pied. Un ascenseur donne accès à tous les...

Détails du bien

Disponible à partir de
Sur accord
Pièces
3.5
Année de construction
2026
Surface habitable
100
Étage
1er

Caractéristiques

Garage
Ascenseur
Nouveau développement
Machine à laver
Sèche-linge
Adapté aux fauteuils roulants
Adapté aux enfants

Agence

IT3 Treuhand + Immobilien AG
Adresse:Schönmaiengässchen 1, 8200, Schaffhausen
Ref: *SH-Müliacker, Rafz WHG 1.1
En ligne depuis
25/09/2025
il y a 23 jours

Localisation

Müliacker, 8197 Rafz

Sources