Duplex à vendre - Brislachstrasse, 4242 Laufen
Pourquoi vous aimerez ce bien
Construction en bois durable
Jardin privé avec terrasse
Cuisine ouverte moderne
Organiser une visite
Réserver une visite aujourd'hui !
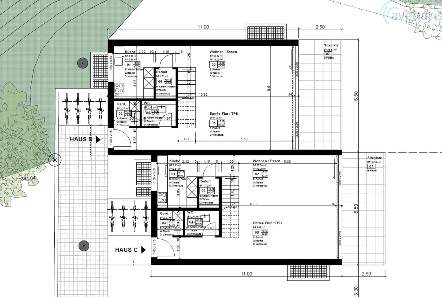
Nouvelle construction : maisons individuelles jumelées modernes et spacieuses
Dans un quartier résidentiel familial et bien desservi, un développement moderne avec quatre maisons individuelles jumelées est en cours de construction, qui impressionne par sa construction durable, son confort de vie contemporain, ses plans d'étage réfléchis et ses belles finitions.
Le sous-sol sera construit en construction massive solide (béton), tandis qu'à partir du rez-de-chaussée, une construction en éléments de bois durable et écologique sera utilisée. Une pompe à chaleur air-eau modern...
Détails du bien
- Disponible à partir de
- Sur accord
- Pièces
- 5.5
- Salles de bain
- 2
- Année de construction
- 2026
- Surface habitable
- 155 m²
- Surface du terrain
- 175 m²



