Attique à vendre - Waldburgstrasse 9b, 9244 Niederuzwil
Pourquoi vous aimerez ce bien
Espace de vie lumineux
Buanderie privée incluse
Emplacement calme et ensoleillé
Organiser une visite
Réserver une visite avec Ventaglio aujourd'hui !
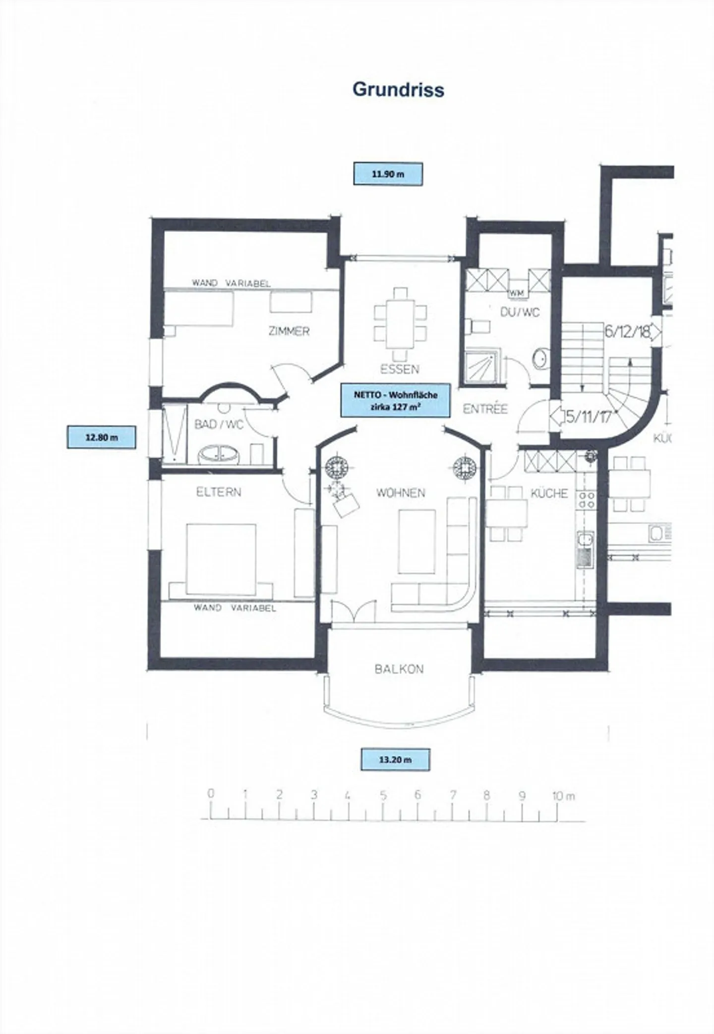
Charmant appartement en attique 3½ pièces avec balcon et garage souterrain
Votre nouveau chez-vous à Niederuzwil
Cet appartement en attique lumineux et bien entretenu séduit par une atmosphère de vie agréable, beaucoup de lumière et un plan d'étage réfléchi. Sur environ 114 m², vous profitez d'un confort de vie dans un environnement calme - idéal pour les couples ou les petites familles.
Le balcon ensoleillé invite à la détente, tandis que des extras pratiques comme une buanderie privée et une cave offrent un confort supplémentaire.
Ce qui vous attend
- Espace de vie et sa...
Détails du bien
- Disponible à partir de
- Sur accord
- Pièces
- 3.5
- Année de construction
- 1990
- Surface habitable
- 114 m²
- Étage
- 4ème
- Étages du bâtiment
- 4



