Appartement à vendre - 8855 Wangen SZ
Pourquoi vous aimerez ce bien
Terrasse privée pour se détendre
Espaces de rangement spacieux
Emplacement ensoleillé et lumineux
Organiser une visite
Réserver une visite aujourd'hui !
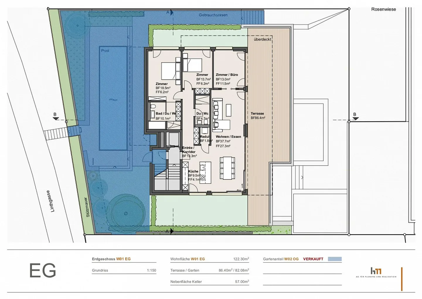
Appartement moderne de 4,5 pièces dans le nouveau bâtiment à wangen sz
Découvrez cet appartement exclusif de 4,5 pièces au rez-de-chaussée surélevé d'un bâtiment neuf ultramoderne à Wangen SZ. Avec une surface habitable généreuse de 123 m² et une finition prévue au printemps 2027, cette propriété offre un confort de vie optimal selon les dernières normes.
L'appartement se distingue par :
- Terrasse privée : Parfaite pour des heures de détente en plein air
- Espaces annexes spacieux : Espace de rangement supplémentaire
- Garage et place de parking : Options de stationne...
Détails du bien
- Disponible à partir de
- Sur accord
- Pièces
- 4.5
- Année de construction
- 2027
- Surface habitable
- 123 m²
- Étage
- 11ème



