Attique à vendre - Säntisstrasse 8, 8733 Eschenbach SG
Pourquoi vous aimerez ce bien
Espaces extérieurs spacieux
Appareils de cuisine haut de gamme
Emplacement panoramique unique
Organiser une visite
Réserver une visite avec Riegger aujourd'hui !
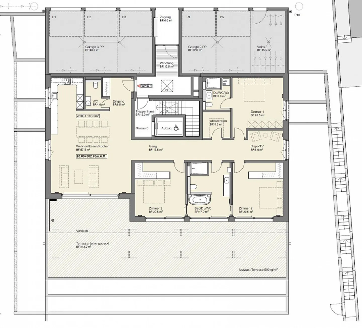
Penthouse de rêve avec vue grandiose
Dans un emplacement privilégié, ce projet de construction neuve exclusif avec seulement cinq appartements en copropriété est en cours de création. La date d'emménagement prévue est l'automne 2026.
Les appartements, conçus avec un souci du détail et un sens de l'ensemble, impressionnent par leur architecture raffinée et un plan d'étage soigneusement pensé, qui, en association avec le standard de construction de haute qualité, offre des conditions optimales pour la meilleure qualité de vie. Les gén...
Détails du bien
- Disponible à partir de
- Sur accord
- Pièces
- 4.5
- Année de construction
- 2026
- Surface habitable
- 183 m²



