Appartement à vendre - Via Nova 72, 7017 Flims Dorf
Pourquoi vous aimerez ce bien
Accès Ski-in/Ski-out
Espace bien-être sur place
Option Acheter pour Utiliser & Louer
Organiser une visite
Réserver une visite avec Ostergaard aujourd'hui !
Dernière chance ! appartement géré juste à côté des remontées mécaniques !
Téléchargez la documentation !
Au cœur de Flims, à l'emplacement idéal juste à la station de vallée, le Sulai Flims est en cours de développement - un projet résidentiel et hôtelier unique qui allie style de vie alpin et confort maximal.
À vendre :
- 7 appartements de 2,5 pièces : Acheter pour utiliser et louer
- 5 maisons de ville de 3,5 pièces : Acheter pour utiliser et louer
- 1 luxueuse maison de ville de 4,5 pièces en résidence secondaire
- 1 maison de ville moderne de 2,5 pièces en résidence pri...
Détails du bien
- Disponible à partir de
- Sur accord
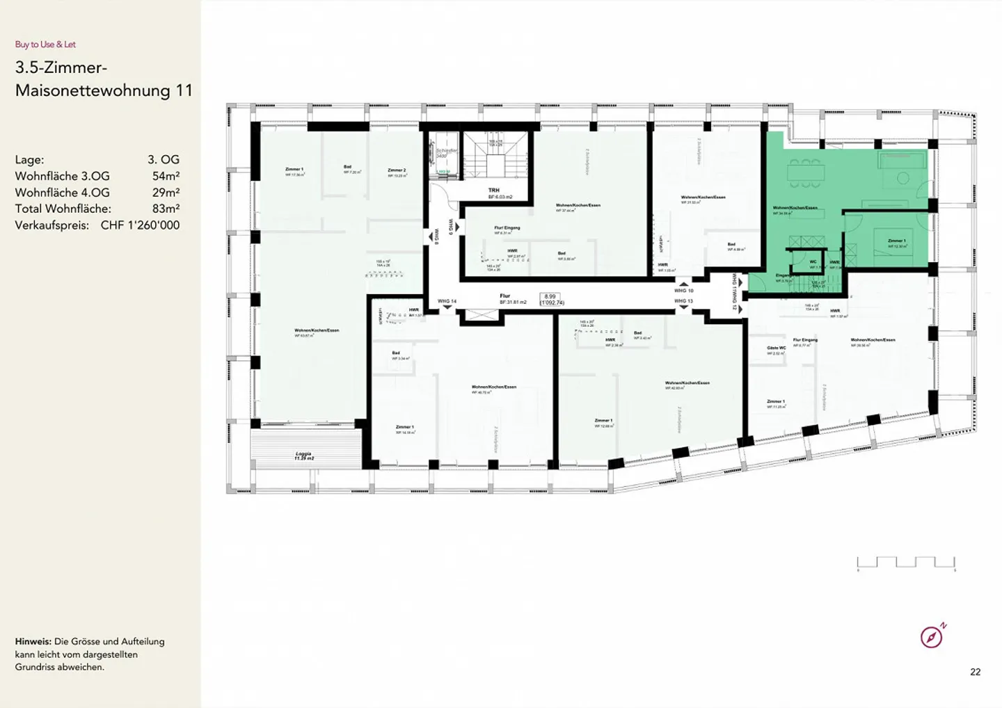
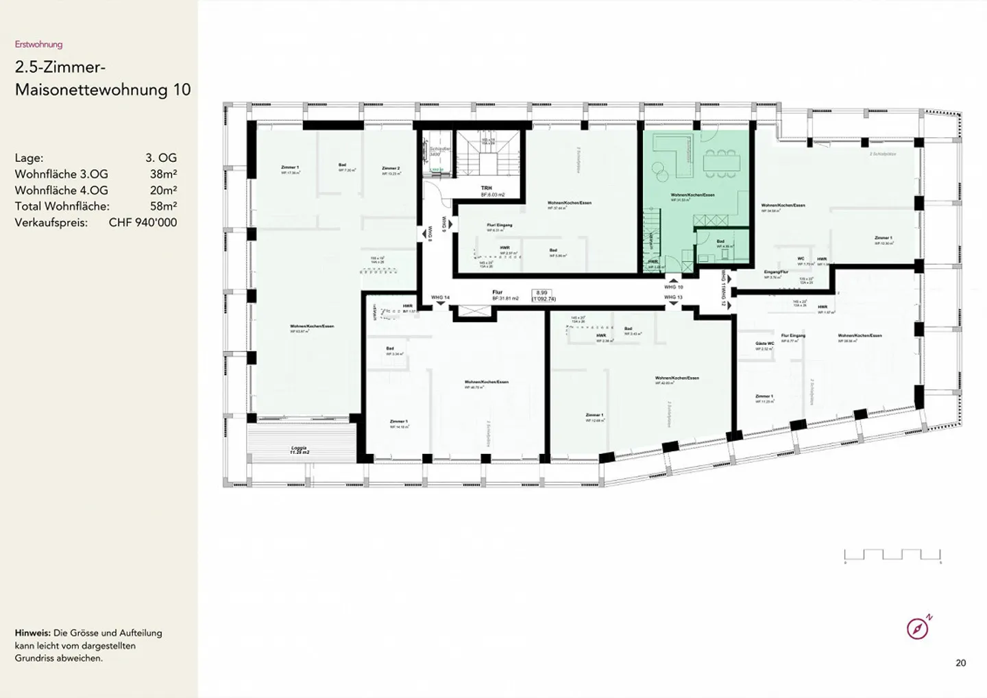
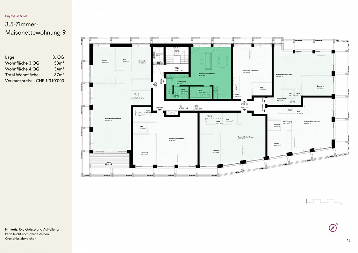
- Pièces
- 3.5
- Année de construction
- 2027
- Année de rénovation
- 2027
- Surface habitable
- 87 m²
- Étage
- 4ème
- Étages du bâtiment
- 4



