Appartement à vendre - Töbelimülistrasse 6a, 9424 Rheineck
Pourquoi vous aimerez ce bien
Salon spacieux
Terrasse avec vue
Cuisine ouverte moderne
Organiser une visite
Réserver une visite avec Wir aujourd'hui !
Appartement de 4,5 pièces de première classe dans un emplacement de choix
Cet appartement de 4,5 pièces, attrayant et très bien rénové, est situé au Töbelimülistrasse 6a dans un emplacement résidentiel de choix.
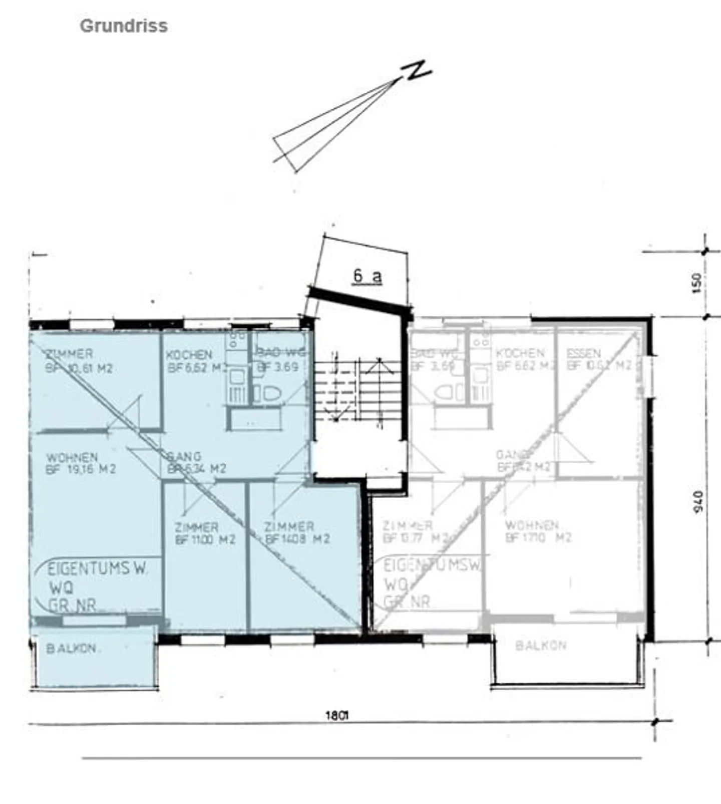
Avec 80 m² de surface habitable, l'appartement impressionne par une bonne répartition des pièces :
- Salon lumineux et spacieux
- Terrasse accueillante avec belle vue
- Cuisine moderne et ouverte avec un excellent équipement
- Trois grandes chambres – deux côte à côte, la troisième séparée de l'autre côté (voir plan)
- Salle de bain avec baignoire, machine à laver e...
Détails du bien
- Disponible à partir de
- Sur accord
- Pièces
- 4.5
- Année de construction
- 1991
- Surface habitable
- 80 m²
- Étage
- 3ème
- Étages du bâtiment
- 4



