Appartement à vendre - 6900 Massagno
Pourquoi vous aimerez ce bien
Terrasse avec vue sur le lac
Finitions modernes partout
Buanderie privée incluse
Organiser une visite
Réserver une visite aujourd'hui !
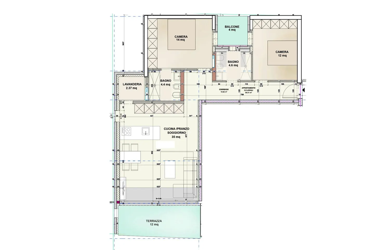
Nouveau 3.5 pièces haut standing vue sur le lac à lugano massagno
Nouvel appartement moderne de 3.5 pièces de 105 m² avec balcon et terrasse de 11 m² vue sur le lac, comprenant deux chambres doubles et de belles finitions. L'appartement est situé au 3ème étage d'un immeuble de nouvelle construction, qui sera livré d'ici 2024, conçu pour accueillir 18 unités résidentielles desservies par un ascenseur, situé dans l'un des quartiers les plus recherchés de Lugano-Massagno, stratégique et très pratique pour les services, à courte distance de la gare et de la sortie...
Détails du bien
- Disponible à partir de
- 10.01.2024
- Pièces
- 3.5
- Année de construction
- 2024
- Surface habitable
- 90 m²
- Surface utilisable
- 105 m²
- Étage
- 3ème




