Appartement à vendre - 6855 Stabio
Pourquoi vous aimerez ce bien
Terrasse spacieuse pour se détendre
Cuisine rénovée au style moderne
Zone calme près des commodités
Organiser une visite
Réserver une visite avec Stabile aujourd'hui !
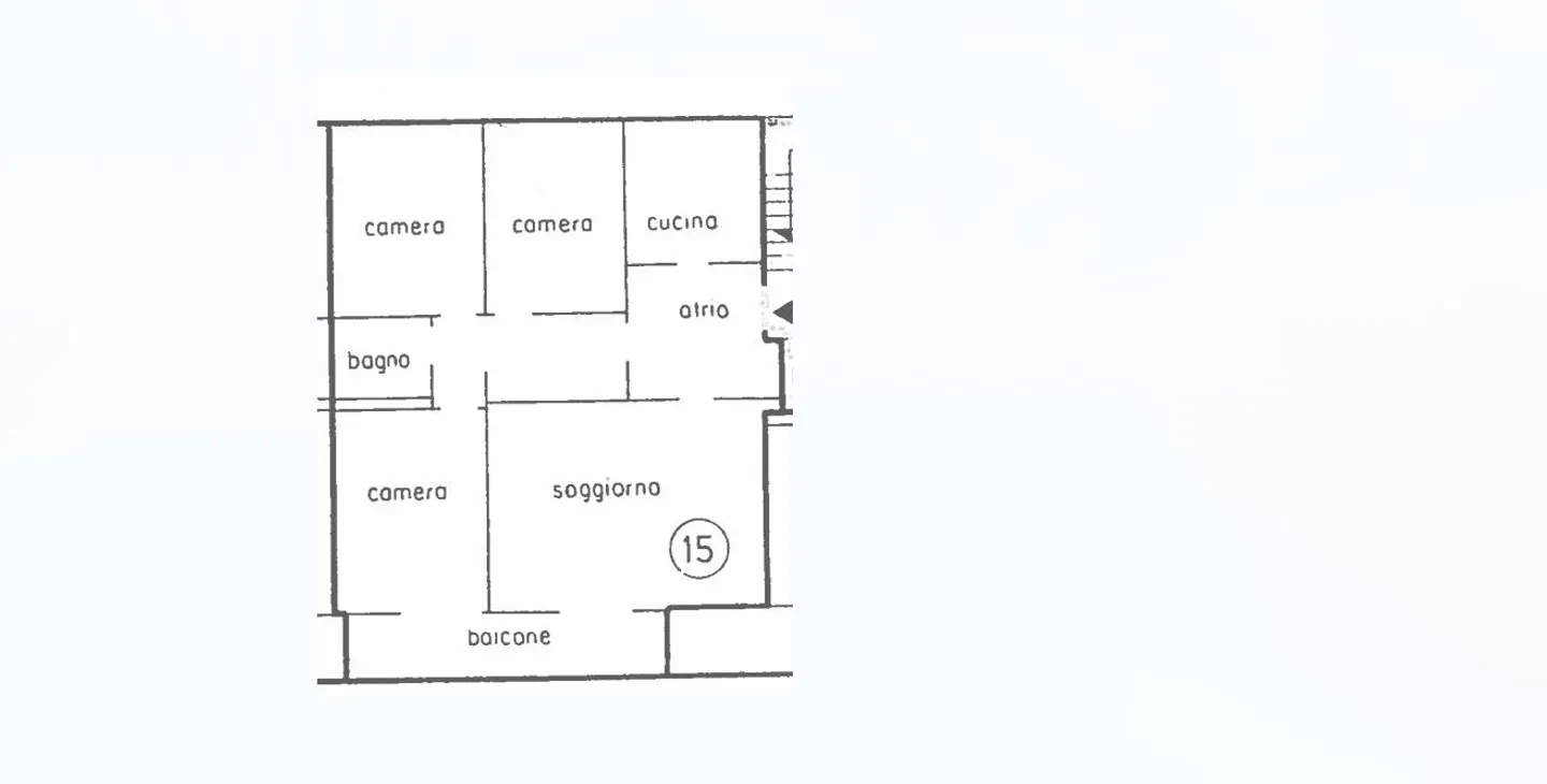
OPPORTUNITÉ - APPARTEMENT DE 4,5 PIÈCES À STABIO
Nous proposons un appartement de 4,5 pièces d'environ 100 m² avec terrasse à vendre, situé au troisième et dernier étage d'un immeuble résidentiel construit en 1975 et soigneusement entretenu au fil des ans.
La propriété est située dans un quartier résidentiel calme et en même temps dans un emplacement stratégique : Les principaux services, de la crèche à l'école intermédiaire, ainsi que des supermarchés et des magasins, se trouvent à proximité immédiate. La connexion autoroutière de Mendrisio e...
Détails du bien
- Disponible à partir de
- Sur accord
- Pièces
- 4.5
- Année de construction
- 1975
- Surface habitable
- 100 m²
- Surface utilisable
- 100 m²
- Étage
- 3ème



