1 / 17

Appartement à vendre - 6825 Capolago

65 m² • 1er étage
CHF 396’000.-
CHF 6’092 m²

Pourquoi vous aimerez ce bien

Jardin privé pour se détendre

Terrasse spacieuse avec vue

Espace de vie lumineux avec cuisine

Organiser une visite

Réserver une visite aujourd'hui !

New Trends SA
Cette description a été traduite automatiquement depuis Italien.

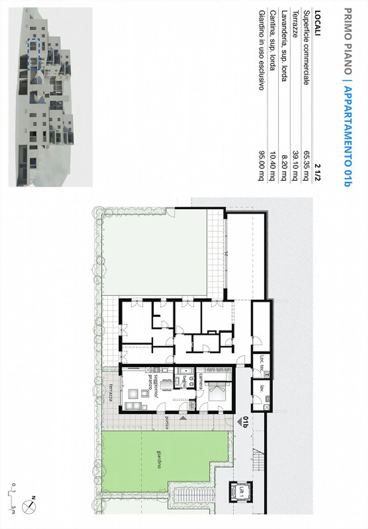
Mendrisio 2,5 pièces, moderne, avec jardin privé et terrasse panoramique

Dans une zone ensoleillée et calme de Mendrisio, à quelques pas de tous les principaux services, nous proposons à la vente un élégant appartement de 2,5 pièces en nouvelle construction. La propriété, caractérisée par des espaces lumineux et bien répartis, s'étend sur une surface intérieure de 65,35 m², enrichie par une belle terrasse de 39,10 m² et un jardin privé de 85 m², parfait pour profiter de moments de détente à l'air frais.

L'entrée séparée mène à un grand salon avec cuisine ouverte, un...

Détails du bien

Disponible à partir de
Sur accord
Surface habitable
65
Étage
1er

Caractéristiques

Vue dégagée
Ascenseur

Agence

New Trends SA
Adresse:Pretorio 11, 6900, Lugano
Ref: 1540
En ligne depuis
07/10/2025
il y a 10 jours

Localisation

6825 Capolago

Sources