Appartement à vendre - 6817 Maroggia
Pourquoi vous aimerez ce bien
Vue imprenable sur le parc
Cuisine moderne en stratifié blanc
Proche des plages lacustres
Organiser une visite
Réserver une visite aujourd'hui !
SPACIEUX 2.5 PIÈCES DANS UNE RÉSIDENCE DE PRESTIGE À MAROGGIA
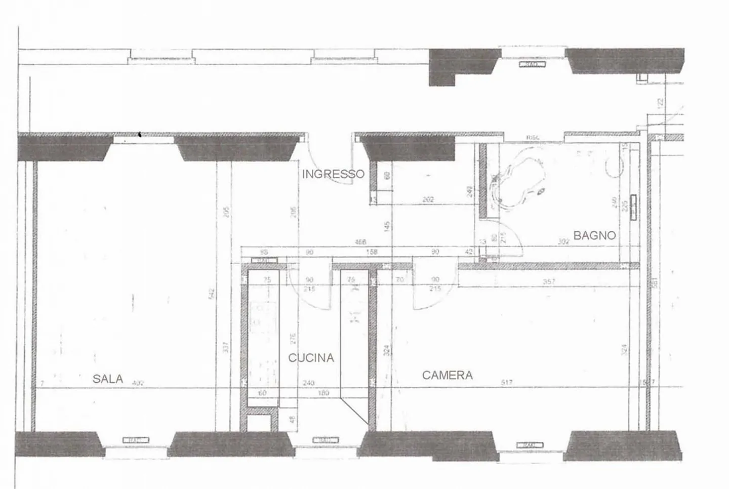
Appartement spacieux et moderne de 2.5 pièces d'environ 75 m² brut, situé au 2ème étage de 3 dans un bâtiment prestigieux entièrement rénové en 2008, avec seulement 10 unités, principalement pour les vacances, dans un quartier résidentiel de la commune de Maroggia.
L'appartement se caractérise par de hauts plafonds et une excellente luminosité grâce aux fenêtres, d'où l'on peut profiter d'une belle vue sur le parc en face de la résidence, et se compose d'un grand hall d'entrée avec un spacieux pl...
Détails du bien
- Disponible à partir de
- Sur accord
- Pièces
- 2.5
- Année de construction
- 1900
- Étage
- 2ème


