Appartement à vendre - 6814 Lamone
Pourquoi vous aimerez ce bien
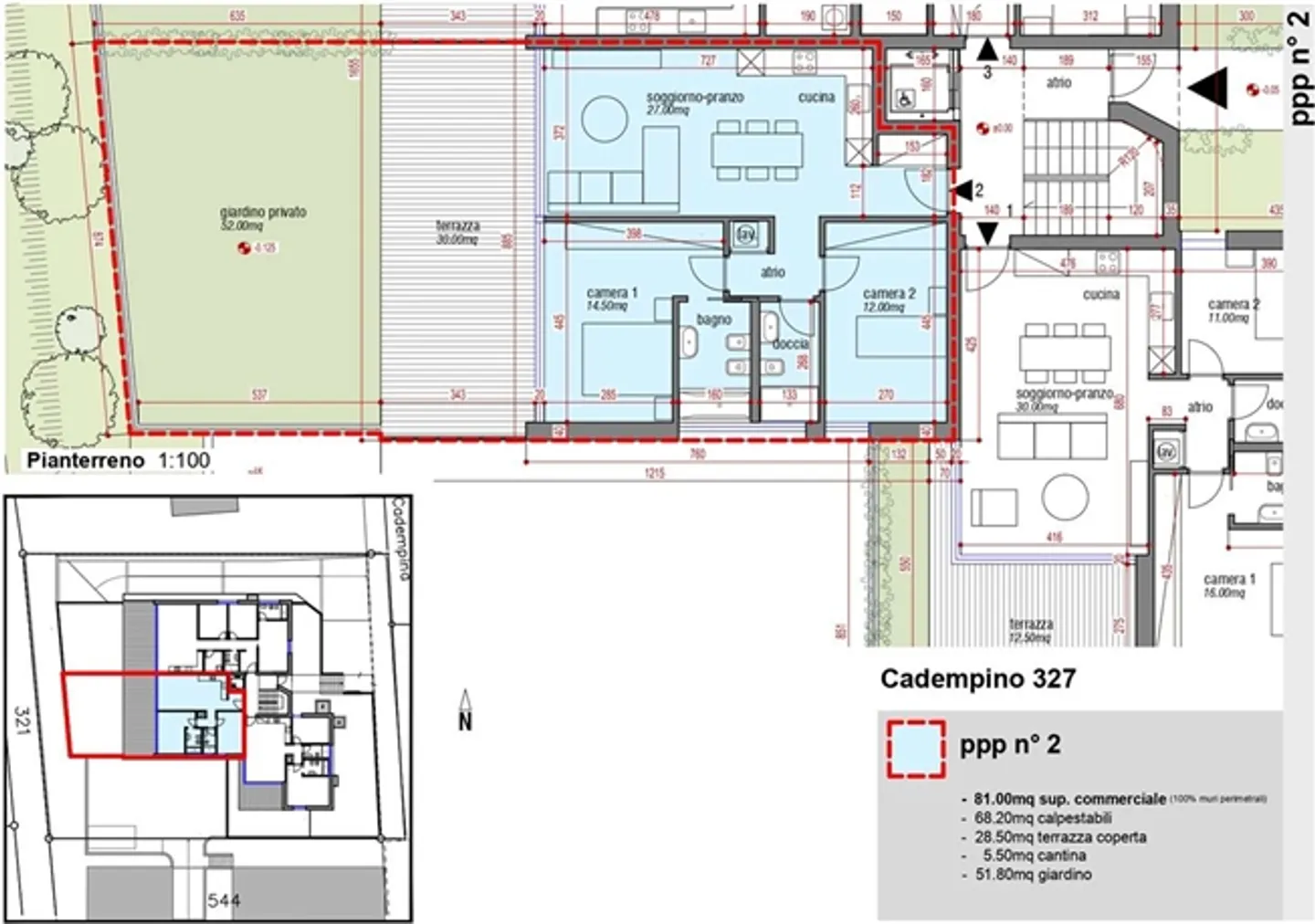
Espace de vie spacieux
Jardin privé avec irrigation
Agencement personnalisable au rez-de-chaussée
Organiser une visite
Réserver une visite aujourd'hui !
Nouveau bâtiment à cadempino avec jardin privé
Vous cherchez un appartement moderne avec véranda et jardin privé à Cadempino, dans un quartier calme ? Nous vous présentons un nouveau bâtiment en construction, composé de 6 appartements avec ascenseur, vérandas et jardins privés. Situé dans un quartier confortable, il offre tranquillité et un accès pratique aux services. L'appartement au rez-de-chaussée est personnalisable et comprend : - Un espace de vie spacieux avec salon et cuisine ouverte avec accès à la véranda et au jardin. - Chambre pr...
Détails du bien
- Disponible à partir de
- Sur accord
- Pièces
- 3
- Année de construction
- 2025



