Appartement à vendre - 6500 Bellinzona
Pourquoi vous aimerez ce bien
Jardins privés pour chaque unité
Terrasses spacieuses avec vue
Certifié Minergie pour l'efficacité
Organiser une visite
Réserver une visite aujourd'hui !
Merveilleux appartements dans la résidence lupa
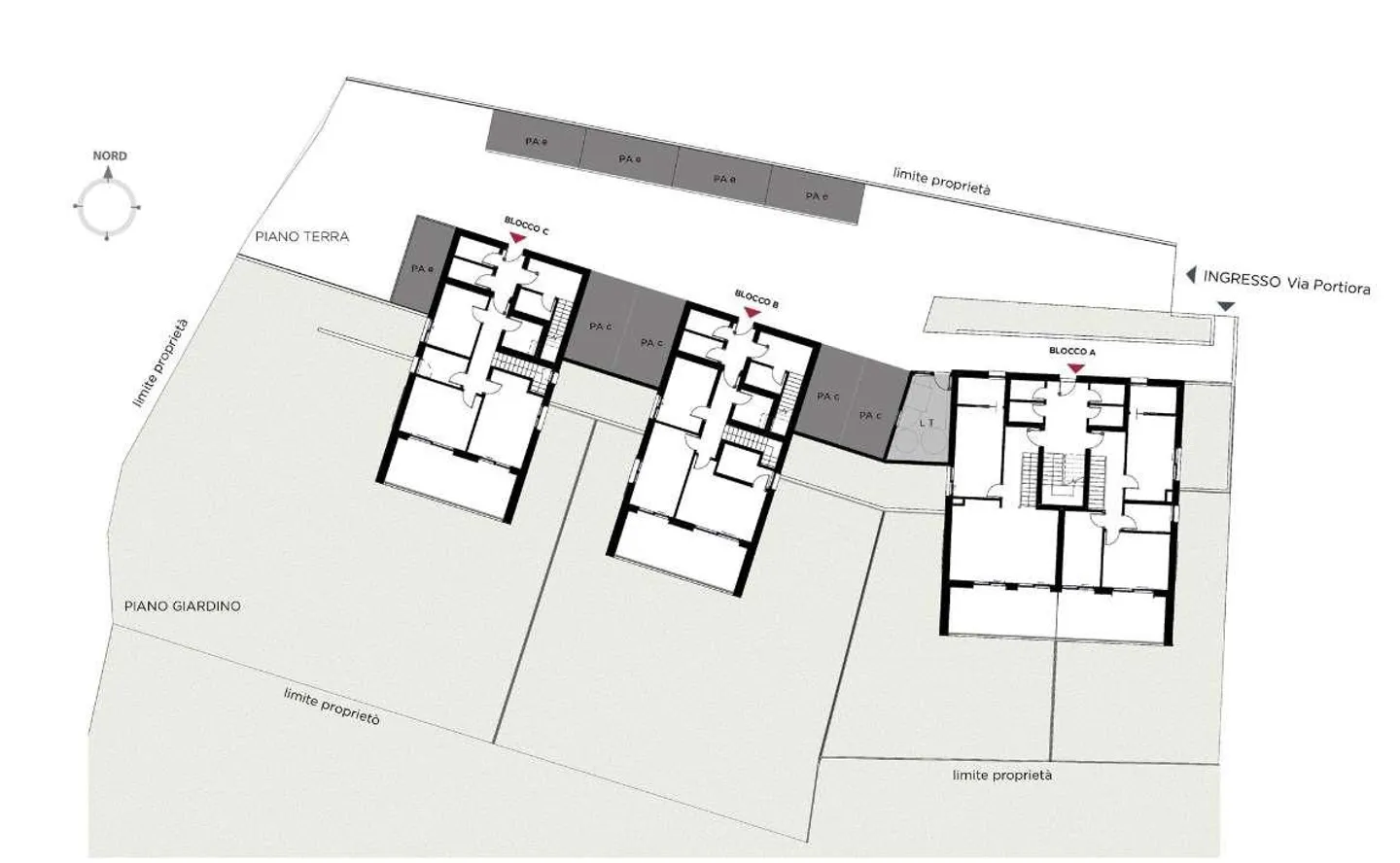
La Residenza Lupa est en construction à Galbisio, un quartier calme de Bellinzona. Le complexe est situé à quelques kilomètres de la sortie Bellinzona Nord et à un pas du futur semi-sortie de Bellinzona Centro. Situés dans la zone résidentielle extensive dans le hameau de Galbisio à Bellinzona, 6 appartements sont à vendre en PPP. Le projet se caractérise par l'alternance de volumes en porte-à-faux, permettant à chaque résidence d'avoir un jardin privé. L'intention du projet est de créer un comp...
Détails du bien
- Disponible à partir de
- Sur accord
- Pièces
- 4.5
- Surface habitable
- 124 m²



