Appartement en terrasse à vendre - Chemin De La Poya 6, 1610 Oron-la-Ville
Pourquoi vous aimerez ce bien
Espace de vie de 96 m²
Terrasse couverte privée
Accessible aux personnes à mobilité réduite
Organiser une visite
Réserver une visite aujourd'hui !
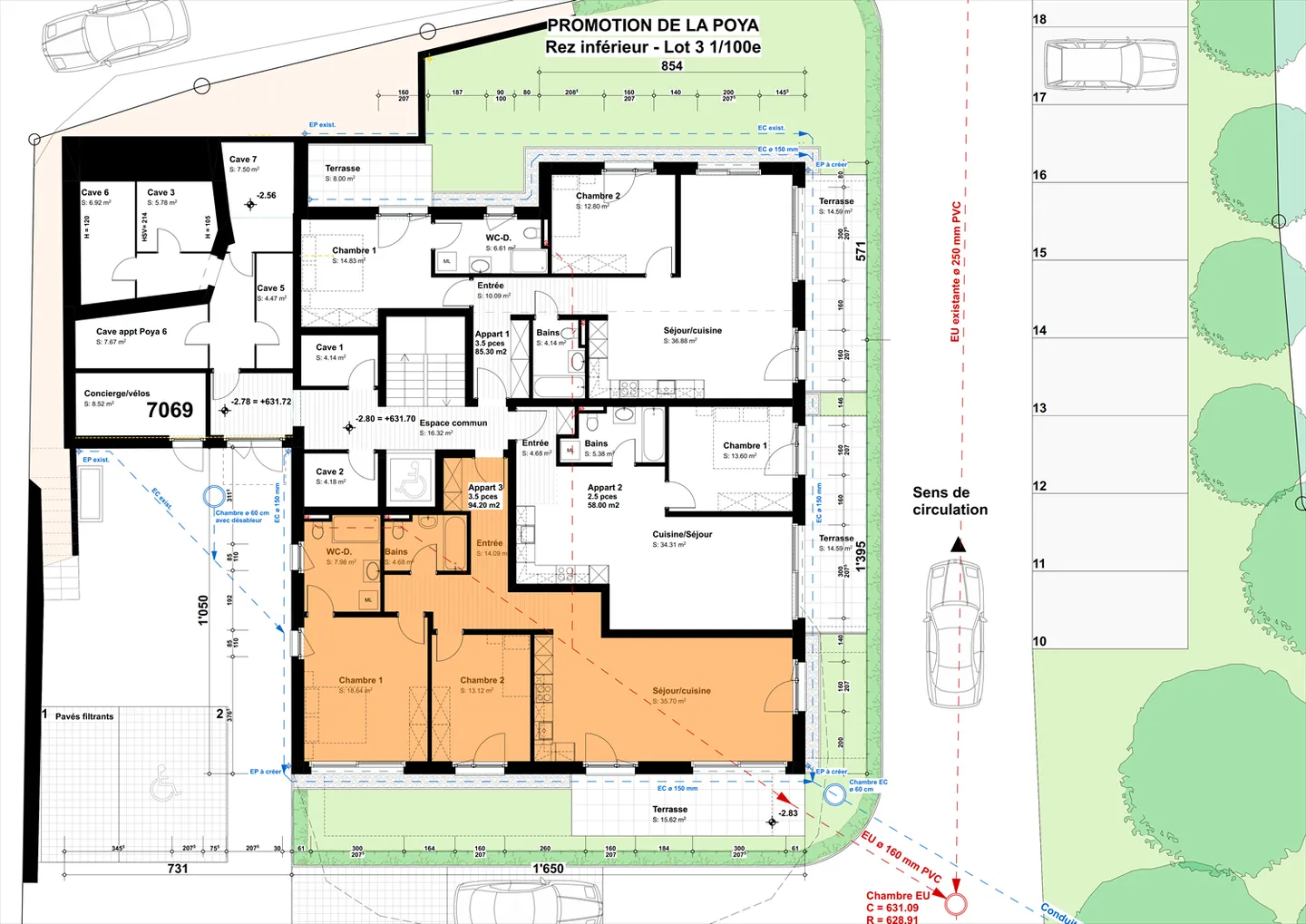
Appartement terrasse 3.5 pièces
Appartement-terrasse neuf de 3,5 pièces, au centre d'Oron, ultra-centre et très calme
Découvrez ce superbe appartement moderne et lumineux situé au rez-de-chaussée inférieur d'une nouvelle construction, offrant un cadre de vie paisible et ensoleillé
✨ Points forts :
* Surface de vente nette: 103.31 m²
* Pièces spacieuses et lumineuses
* Terrasse couverte privée : 15.62 m², idéale pour vos moments de détente
* Accessibilité : immeuble avec ascenseur, adapté aux personnes à mobilité réduite
* Disposition...
Détails du bien
- Disponible à partir de
- Sur accord
- Pièces
- 3.5
- Salles de bain
- 2
- Surface habitable
- 94 m²



