Appartement à vendre - 5630 Muri AG
Pourquoi vous aimerez ce bien
Conception durable
Cour intérieure paisible
À 5 min à pied du marché
Organiser une visite
Réserver une visite avec Besime aujourd'hui !
Bienvenue au <>, un foyer qui allie tranquillité, lumière et confort de vie moderne.
Entourés de beaucoup de verdure et d'une architecture harmonieuse, des appartements sont en train d'être créés, qui rayonnent de chaleur et offrent un véritable espace pour arriver. Chaque unité dispose d'une loggia, votre refuge personnel.
Le développement comprend 15 appartements de 3.5 et 4.5 pièces de haute qualité, construits selon les dernières normes, avec une construction durable et une cour intérieu...
Détails du bien
- Disponible à partir de
- Sur accord
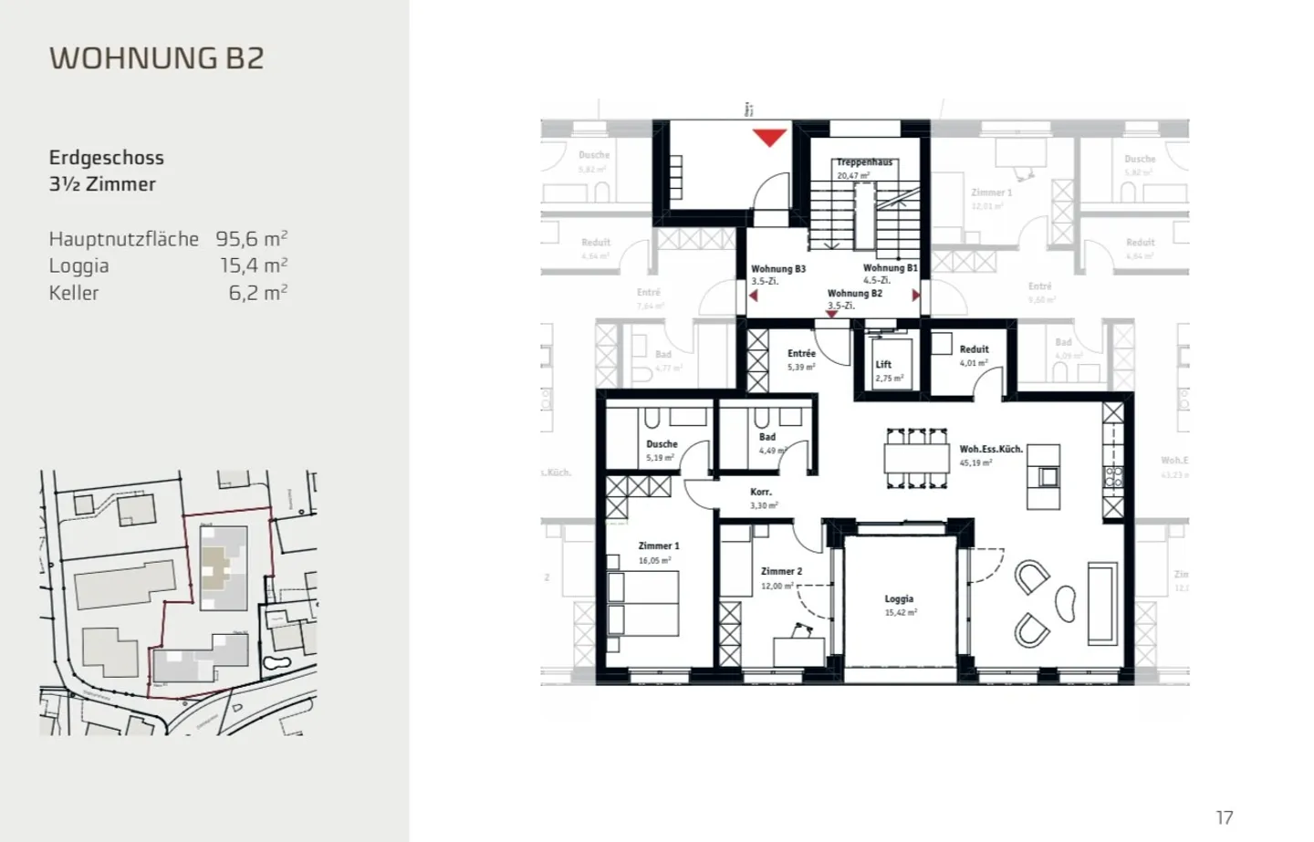
- Pièces
- 3.5
- Année de construction
- 2026
- Surface habitable
- 95.6 m²



