Appartement à vendre - Rue Du Centre Sportif 48, 1936 Verbier
Pourquoi vous aimerez ce bien
Terrasse spacieuse et jardin
Cuisine moderne avec bar
Emplacement calme près des commodités
Organiser une visite
Réserver une visite aujourd'hui !
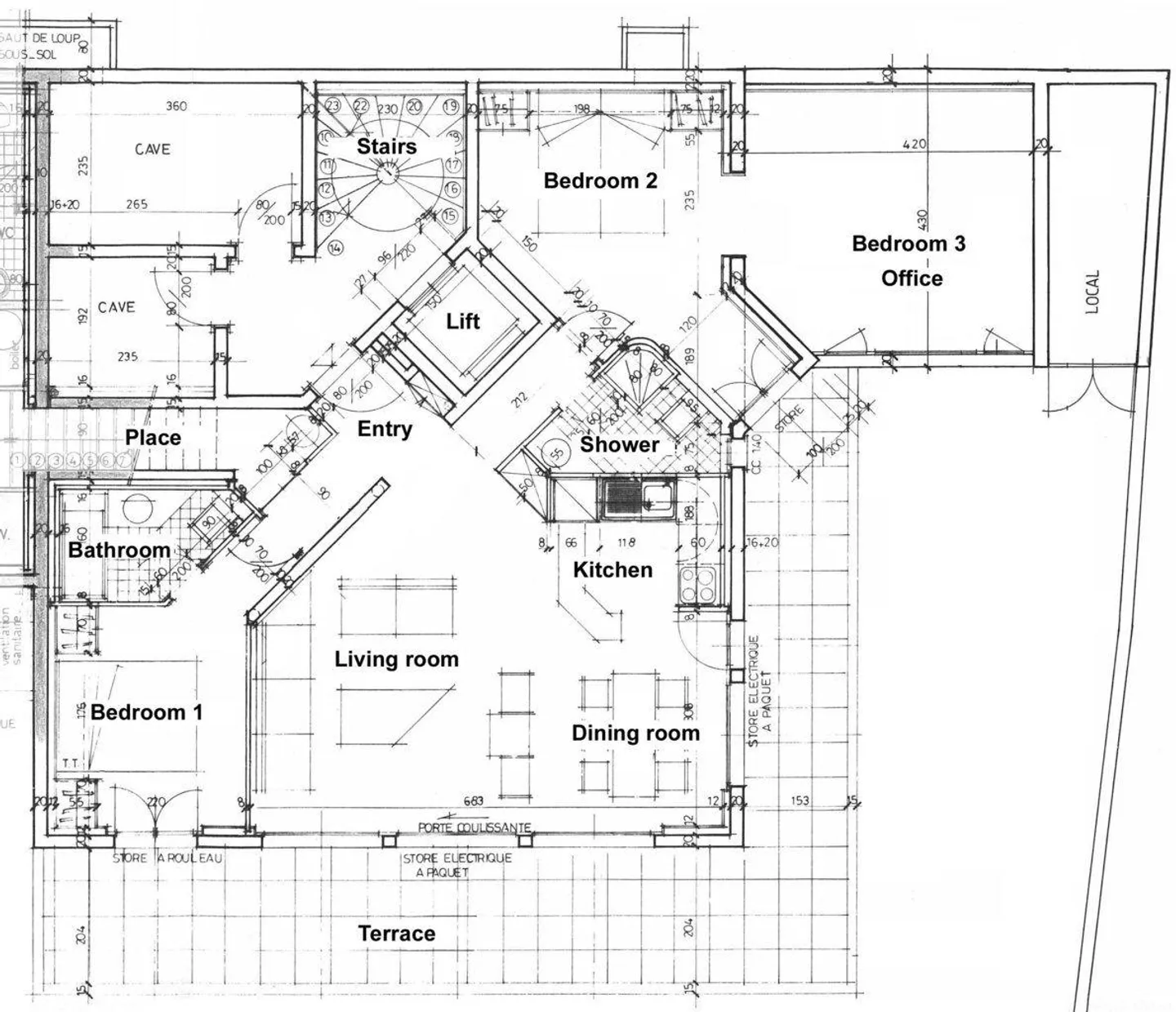
À vendre appartement 3 chambres à verbier
Situé près du centre sportif et de l'arrêt de bus, cet bel appartement se trouve dans un nouveau bâtiment et a un accès facile toute l'année. Il est situé dans un bel environnement très calme avec un accès facile tout au long de l'année.
Composition:
- Hall d'entrée
- Salon avec grandes fenêtres et coin repas
- Bar de cuisine bien équipé
- 1 chambre double avec salle de bain/WC privative
- 1 chambre double avec accès à la terrasse
- 1 chambre ou salle de jeux ou bureau avec porte communicante
- 1 salle...
Détails du bien
- Disponible à partir de
 - Sur accord
 - Pièces
 - 4
 - Année de construction
 - 1992
 



