Appartement à vendre - Derendingenstrasse 45, 4553 Subingen
Pourquoi vous aimerez ce bien
Espace de vie lumineux
Cuisine ouverte moderne
Emplacement pratique près des magasins
Organiser une visite
Réserver une visite aujourd'hui !
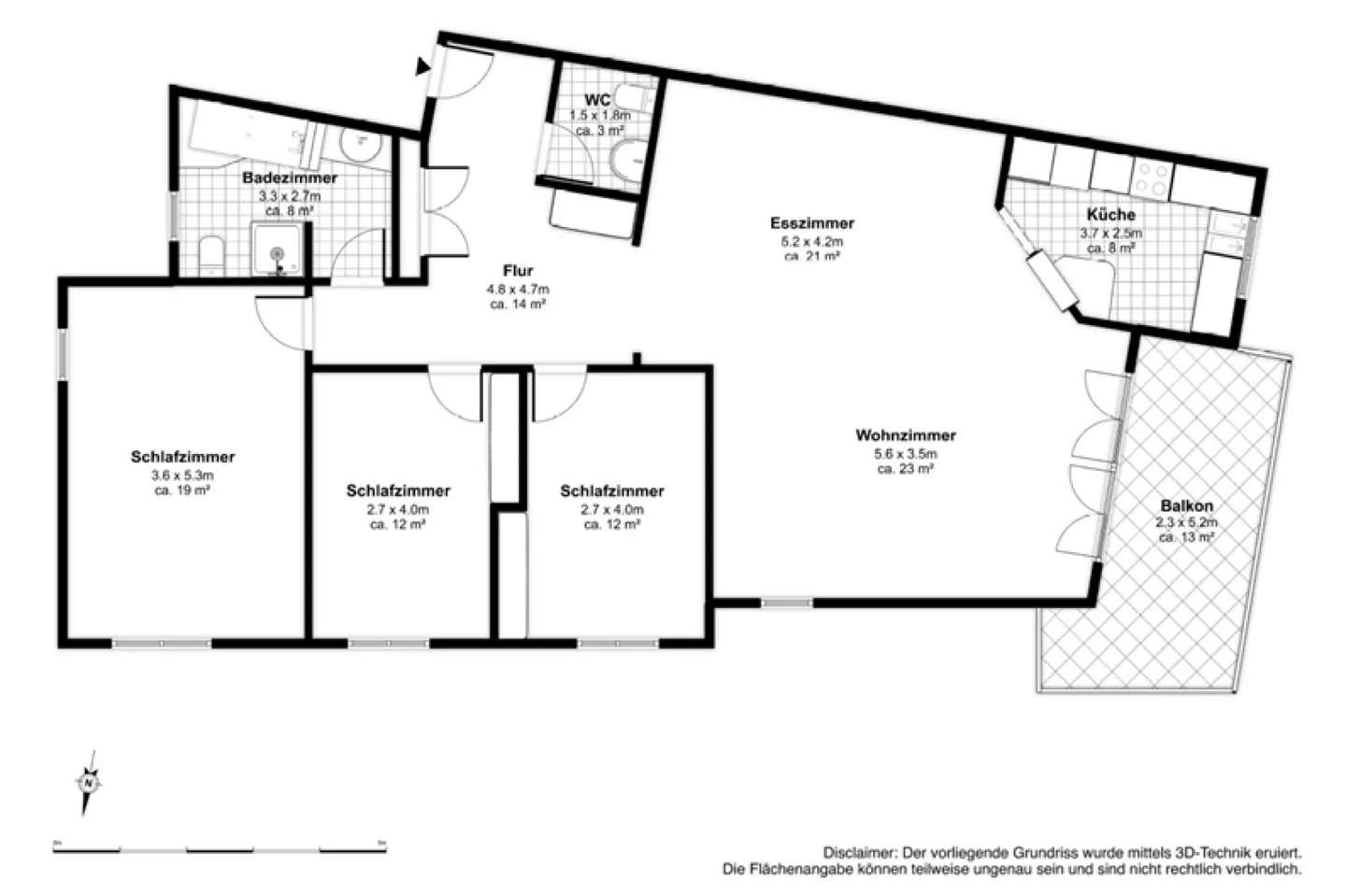
Condominium spacieux de 4,5 pièces avec 120 m², balcon et 2 places de parking
Cet appartement de 4,5 pièces, bien entretenu et lumineux, situé au 1er étage, offre environ 120 m² de surface habitable, un plan d'étage réfléchi et beaucoup d'espace pour les couples ou les familles.
Le spacieux salon et salle à manger, deux salles de bain, le balcon et deux places de parking rendent cette offre particulièrement attrayante. Les commerces, l'école et les transports publics sont facilement accessibles - idéal pour un quotidien confortable à Subingen.
Dès l'entrée, vous êtes accuei...
Détails du bien
- Disponible à partir de
- Sur accord
- Pièces
- 4.5
- Année de construction
- 1997
- Année de rénovation
- 2021
- Surface habitable
- 120 m²
- Surface utilisable
- 120 m²
- Étage
- 1er
- Étages du bâtiment
- 4



