Appartement à vendre - 4310 Rheinfelden
Pourquoi vous aimerez ce bien
Jardins privés pour les unités au rez-de-chaussée
Balcons et terrasses spacieux
Finitions de haute qualité
Organiser une visite
Réserver une visite avec George aujourd'hui !
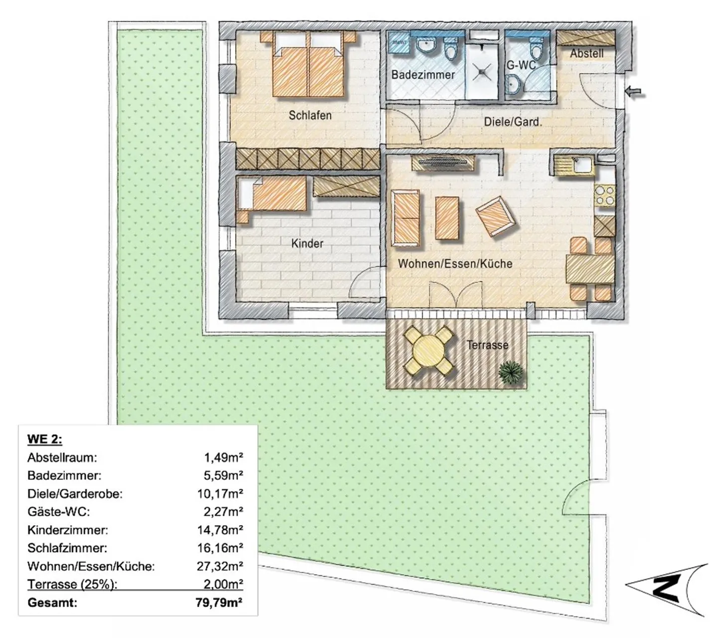
Beau logement à rheinfelden-nollingen
Directement à la frontière suisse à Rheinfelden-Nollingen, un immeuble collectif de 20 appartements de 2,5 à 5,5 pièces est en construction sur la Cranachstraße, répartis sur le rez-de-chaussée, l'étage supérieur et le grenier. Les unités du rez-de-chaussée disposent de jardins à usage exclusif, tandis que les autres appartements disposent de balcons spacieux ou de terrasses sur le toit.
Au sous-sol, il y a des caves et des locaux techniques, des places de stationnement en sous-sol et des options...
Détails du bien
- Disponible à partir de
- Sur accord
- Pièces
- 4.5
- Année de construction
- 2025
- Surface habitable
- 125 m²
- Étages du bâtiment
- 4




