Duplex à vendre - Hauptstrasse 43, 4153 Reinach BL
Pourquoi vous aimerez ce bien
Jardin privé orienté sud
Certifié Minergie-P durable
Accès direct au salon
Organiser une visite
Réserver une visite aujourd'hui !
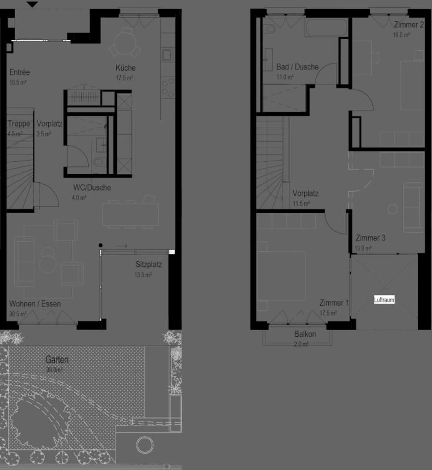
Votre refuge au cœur de Reinach Maisonette avec jardin privé
Visitez maintenant l'appartement jardin-maisonette
Une maison dans un quartier vivant avec des services et des commodités à proximité immédiate et pourtant pas loin des zones de loisirs de Reinach - cela correspond-il à votre idée de logement ?
Le projet de construction neuve Kirchgasse, situé au cœur du village de Reinach, comprend deux bâtiments, la maison point le long de la route principale et la maison longue juste à côté de la place Ernst-Feigenwinter.
Ce beau appartement jardin-maisonette de...
Détails du bien
- Disponible à partir de
- Sur accord
- Pièces
- 4.5
- Année de construction
- 2024
- Surface habitable
- 139 m²



