Appartement à vendre - 4132 Muttenz
Pourquoi vous aimerez ce bien
Conception écoénergétique
Emplacement central avec commodités
Ventilation passive innovante
Organiser une visite
Réserver une visite aujourd'hui !
Vivre et se sentir bien appartement moderne en copropriété avec option d'achat
Efficacité énergétique, confort et équipements modernes réunis
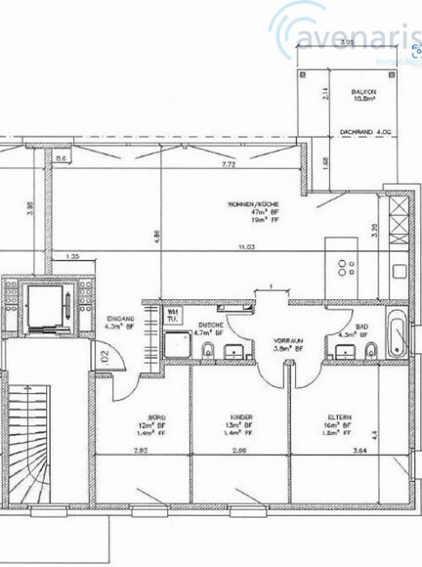
Nous sommes heureux de vous présenter ce spacieux appartement de 4,5 pièces dans un emplacement privilégié à Muttenz, situé dans un immeuble collectif bien entretenu avec ascenseur. L'appartement impressionne non seulement par son emplacement central, mais aussi par sa haute efficacité énergétique et ses équipements durables. Le confort et la conscience environnementale vont ici de pair. La façade de l'immeuble a été fraîchement pein...
Détails du bien
- Disponible à partir de
- Sur accord
- Pièces
- 4.5
- Année de construction
- 2010
- Étage
- 1er



