Appartement à vendre - 3935 Bürchen
Pourquoi vous aimerez ce bien
Vue imprenable sur les Alpes
Balcon spacieux de 81 m²
Espace de vie moderne ouvert
Organiser une visite
Réserver une visite aujourd'hui !
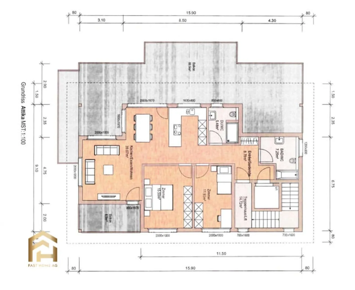
Projet de nouvelle construction : appartement en attique de 3,5 pièces à vendre
Imaginez-vous vous réveiller chaque jour avec une vue imprenable sur les Alpes et profiter de la sensation apaisante que la nature s'éveille juste devant votre porte. L'appartement en attique exclusif dans la maison multifamiliale Waldrand à Bürchen, un village ensoleillé du Valais, offre exactement cela et bien plus encore. Cet appartement est situé au quatrième étage (4ème OG) et établit de nouvelles normes pour un style de vie élégant en altitude.
L'appartement en attique de Waldrand combine...
Détails du bien
- Disponible à partir de
- Sur accord
- Pièces
- 3.5
- Année de construction
- 2024
- Surface habitable
- 88 m²
- Surface utilisable
- 88 m²




