Appartement à vendre - 3920 Zermatt
Pourquoi vous aimerez ce bien
Architecture alpine durable
Vues panoramiques sur le Cervin
Terrasses et balcons spacieux
Organiser une visite
Réserver une visite avec Thomas aujourd'hui !
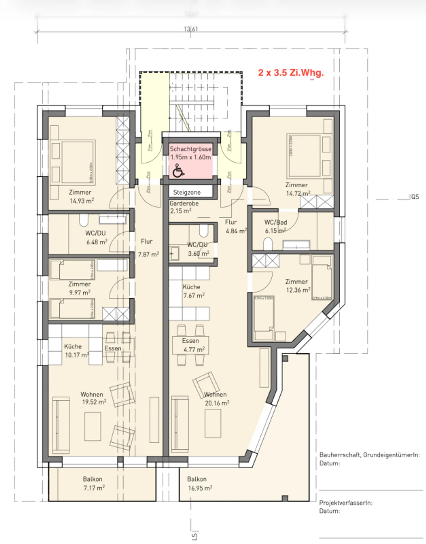
Nouveau projet de construction de premier ordre avec vue sur le Cervin - Résidence principale - 6 unités
Unique et durable
Dans le cadre époustouflant de Zermatt, où les montagnes majestueuses embrassent le ciel, une fascinante maison multifamiliale est en construction, qui impressionne non seulement par son architecture moderne, mais aussi par l'utilisation exquise de la pierre et du bois issu de sources durables. Ici, le design contemporain et l'architecture alpine intemporelle se combinent pour former une œuvre d'art harmonieuse qui touche les yeux et les cœurs.
Architecture et design:
Le bâtiment ...
Détails du bien
- Disponible à partir de
- 31.12.2026
- Année de construction
- 2026
- Étages du bâtiment
- 3



