Appartement à vendre - 3236 Gampelen
Pourquoi vous aimerez ce bien
Environnement naturel idyllique
Accès à une grande terrasse
Salle de douche privative
Organiser une visite
Réserver une visite avec Marie-Claude aujourd'hui !
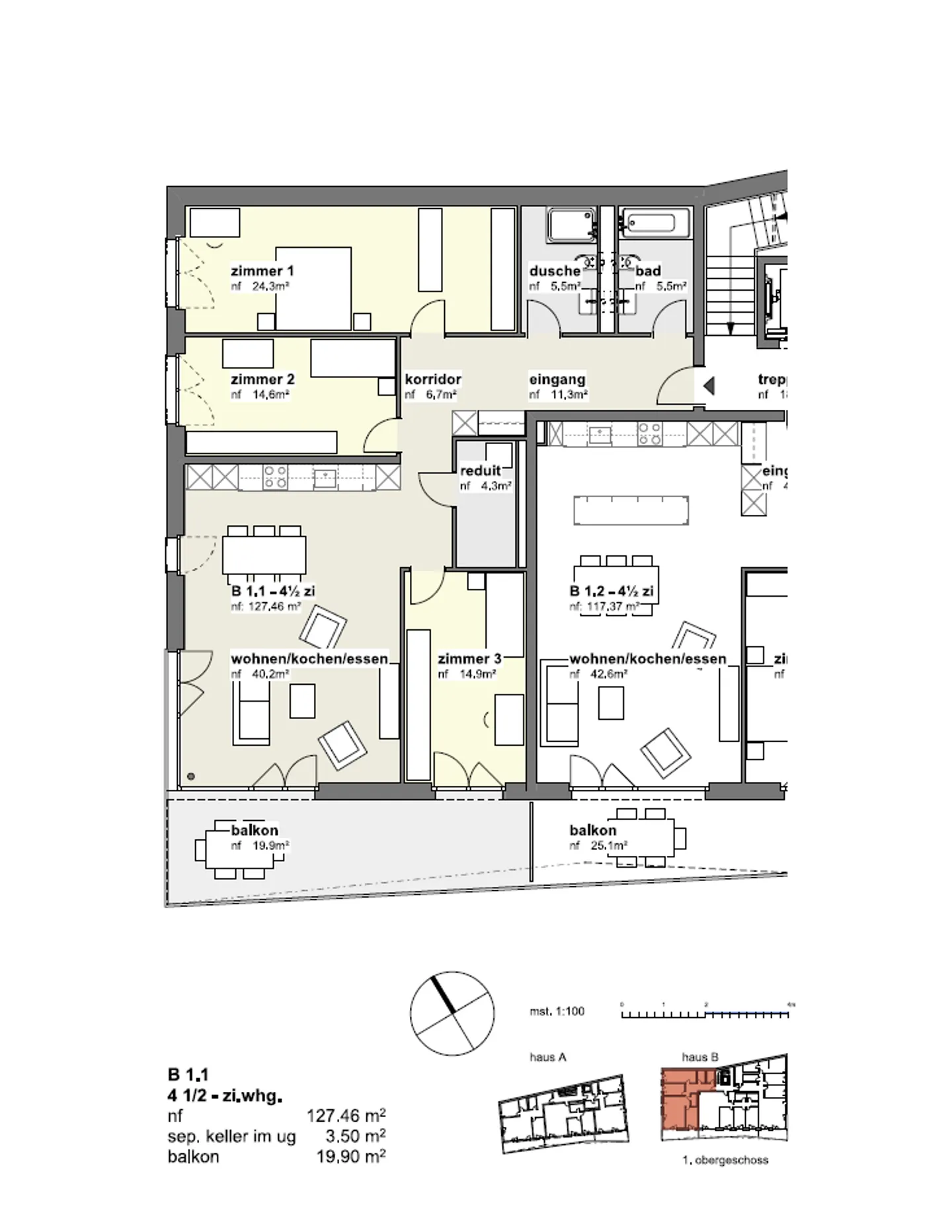
Jolimont - 4.5 pièces au 1er étage
Bienvenue dans la résidence Jolimont qui se situe à Gampelen, un village proche de la nature dans le canton de Berne, au coeur du charmant Pays des Trois-Lacs. Ici, entre lac, collines et prairies fleuries, vous découvrirez un environnement idyllique et reposant, avec une offre culturelle et récréative riche. A proximité immédiate de Neuchâtel, bénéficiez d'une liaison directe avec les villes de Berne, Bienne et Fribourg.
Nous vous proposons des appartements contemporains de qualité avec des typ...
Détails du bien
- Disponible à partir de
- Sur accord
- Pièces
- 4.5
- Salles de bain
- 2
- Année de construction
- 2025
- Surface habitable
- 127.5 m²
- Surface utilisable
- 139.2 m²
- Étage
- 1er




