Appartement à vendre - Route De La Frasse 265, 1618 Châtel-St-Denis
Pourquoi vous aimerez ce bien
Espaces verts généreux
Ambiance chalet charmante
Revenu locatif stable garanti
Organiser une visite
Réserver une visite avec Helene aujourd'hui !
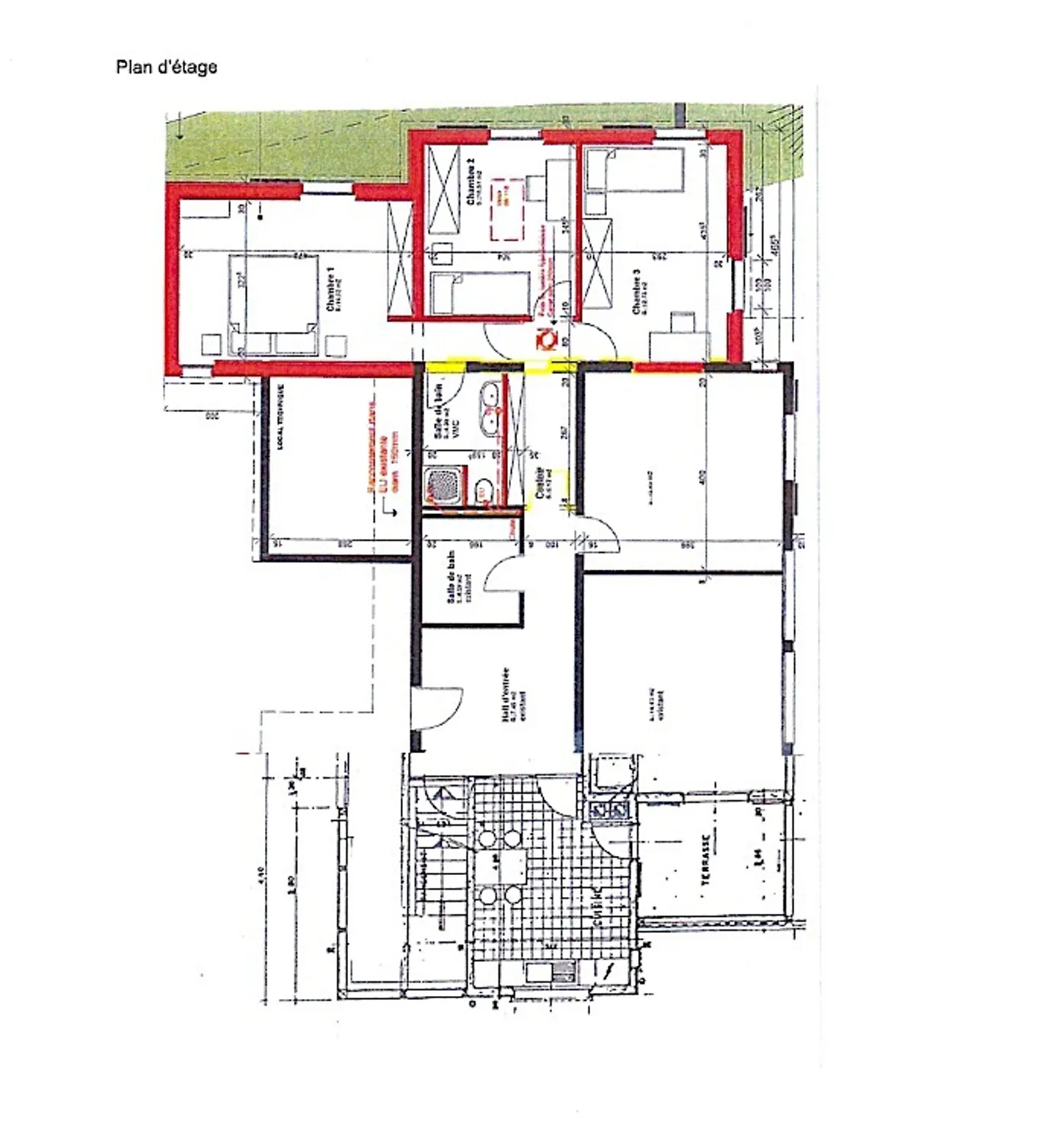
Un Magnifique appartement de 6 pièces dans un chalet au calme et proche de toutes commodités.
La propriétaire actuelle reste locataire dans l'appartement et paie un loyer mensuel( CHF. 1680/mois).
La vente classique est également envisageable.
Résidence est construite sur une parcelle de 2024m2, PPE de 3 appartements (3 copropriétaires différents, 1 seul appartement est à vendre).
L'appartement à vendre représente une Cote part de 50% dans la résidence.
Points forts:
-surface généreuse
-ambian...
Détails du bien
- Disponible à partir de
- Sur accord
- Pièces
- 5.5
- Année de construction
- 1968
- Année de rénovation
- 2020
- Surface habitable
- 130 m²
- Surface du terrain
- 2024 m²
- Étage
- 1er




