Appartement à vendre - Rue De La Roulema 25, 1632 Riaz
Pourquoi vous aimerez ce bien
Jardin privatif spacieux
Grande terrasse pour se détendre
Cuisine moderne avec budget
Organiser une visite
Réserver une visite avec Gérance aujourd'hui !
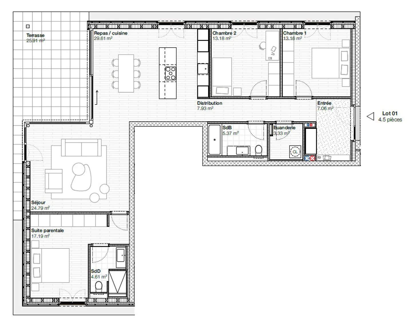
A vendre à Riaz : Magnifique appartement de 4.5 pièces au rez-de-chaussée
L'appartement se compose comme suit :
Entrée/hall
Buanderie
Salle-de-bains (5.37 m2) Cuisine/salle à manger (29.61 m2)
Séjour (24.79 m2)
2 chambres (13.18 m2 / 13.16 m2)
1 chambre parentale avec salle-de-bain (17.19 m2 / 4.61 m2)
Terrasse (25.91 m2)
Jardin privatif (157.27 m2)
Cave (7.04 m2)
Un parking souterrain complète ce projet. Le prix est de CHF 35'000.- l'unité
Livraison : avril 2027 environ
BUDGETS
Appareils sani...
Détails du bien
- Disponible à partir de
- Sur accord
- Pièces
- 4.5
- Année de construction
- 2025
- Surface habitable
- 130 m²
- Surface utilisable
- 146.4 m²
- Étage
- Rez




