Appartement à vendre - Dorfstrasse 22, 3934 Zeneggen
Pourquoi vous aimerez ce bien
Vue imprenable depuis le salon
Cuisine ouverte spacieuse
Grand espace extérieur inclus
Organiser une visite
Réserver une visite aujourd'hui !
Vivre sur le plateau ensoleillé – appartement de 3,5 pièces avec vue
Profitez de la vue imprenable depuis le plateau ensoleillé.
Découvrez un mode de vie moderne sur le pittoresque plateau ensoleillé de Zeneggen. Cet appartement exquis de 3,5 pièces offre une architecture contemporaine avec des vues à couper le souffle et sera prêt à être occupé à partir de février 2027.
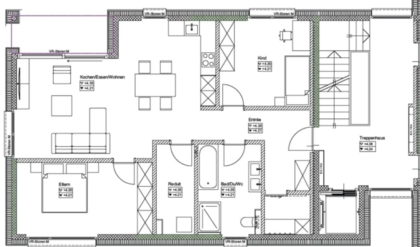
Cet appartement de 3,5 pièces à Zeneggen vous offre 105 m² de vie moderne sur un terrain généreux de 1000 m². Le plan d'étage a été soigneusement pensé : le salon au premier étage impressionne par ...
Détails du bien
- Disponible à partir de
- Sur accord
- Pièces
- 3.5
- Année de construction
- 2027
- Surface habitable
- 105 m²
- Surface du terrain
- 1000 m²
- Étage
- 1er



