Appartement à vendre - Lidostrasse 20, 6314 Unterägeri
Pourquoi vous aimerez ce bien
Aménagement intérieur individuel
Grand jardin & deux balcons
Espace de vie et salle à manger ouverts
Organiser une visite
Réserver une visite avec Matter aujourd'hui !
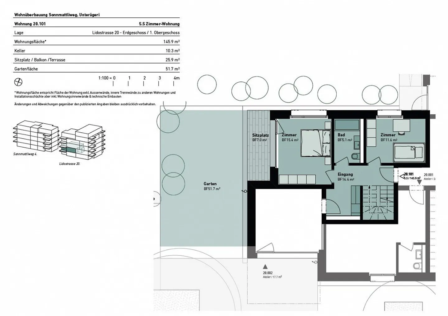
Appartement en duplex de 5½ pièces avec atelier dans un emplacement prisé
appartement en duplex moderne de 5½ pièces (145,9 m²) avec atelier (17,7 m²)
À vendre est un appartement en duplex exclusif de 5½ pièces au centre d'Unterägeri. Divers commerces, restaurants et transports en commun sont à seulement 5 minutes à pied. Le lac d'Ägeri, situé à proximité, invite à faire du jogging, du vélo ou à nager.
Le nouveau projet de construction "Sonnmattliweg" se caractérise par une qualité de construction élevée et des innovations techniques bien pensées. L'appartement dispose ...
Détails du bien
- Disponible à partir de
- Sur accord
- Pièces
- 5.5
- Année de construction
- 2028
- Surface habitable
- 145.9 m²
- Étage
- Rez
- Étages du bâtiment
- 5



