Appartement à vendre - Erikaweg 2, 6233 Büron
Pourquoi vous aimerez ce bien
Grand jardin pour se détendre
Espace de vie lumineux
Buanderie privée dans chaque unité
Organiser une visite
Réserver une visite avec Peter aujourd'hui !
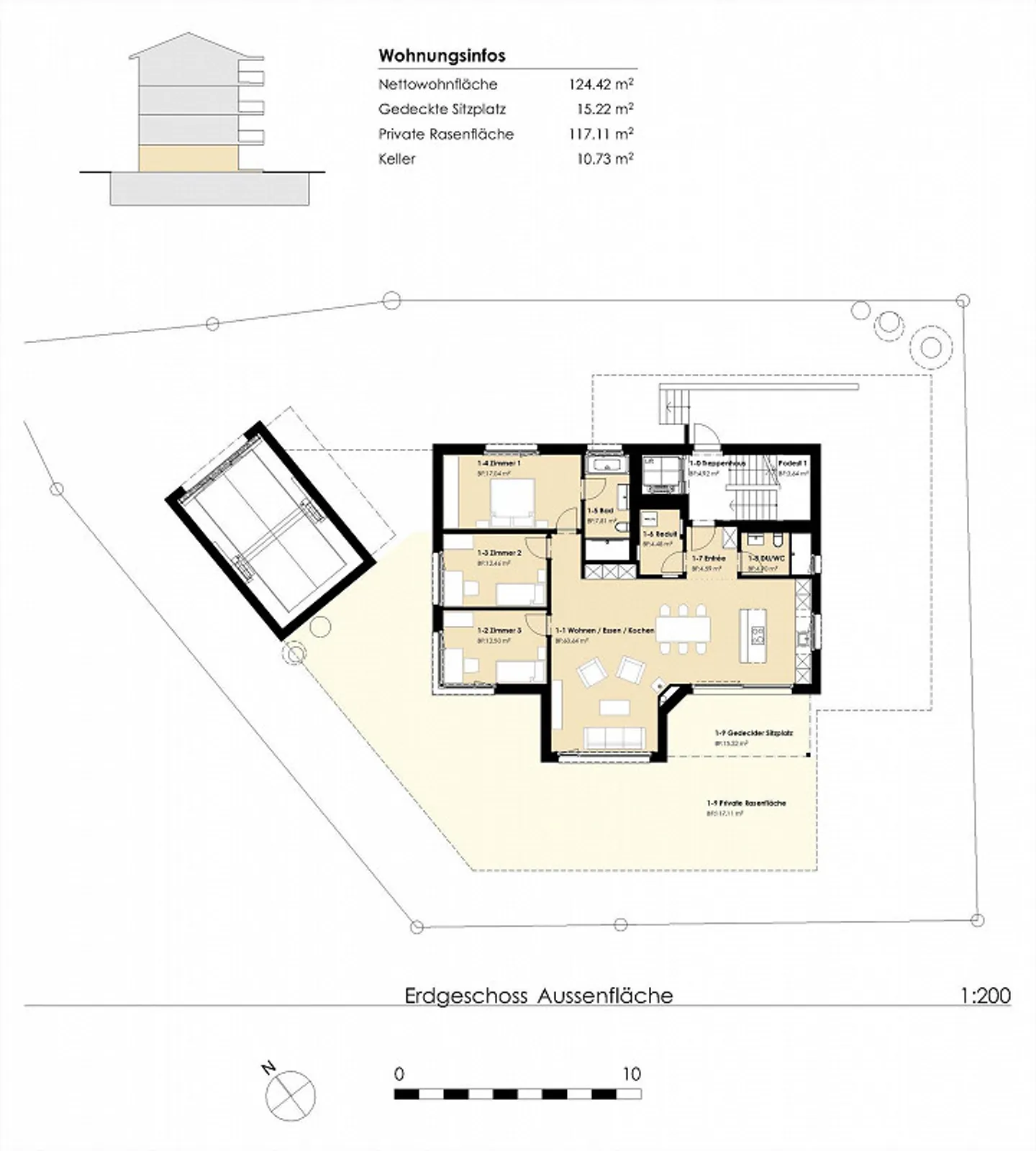
Nouveau – moderne – lumineux et amical ... avec un grand espace jardin
Büron – Calme rural avec proximité urbaine
Ici, vous profitez de la combinaison parfaite entre calme rural et proximité urbaine.
La commune de Büron offre tout pour les besoins quotidiens, comme des possibilités d'achat chez des détaillants et producteurs locaux, le bureau de poste et le dentiste se trouvent au centre du village, et les soins médicaux sont également disponibles sur place. En plus d'une vie de village animée, d'une variété de clubs et d'entreprises, vous bénéficiez d'offres de tran...
Détails du bien
- Disponible à partir de
- 01.05.2027
- Pièces
- 4.5
- Année de construction
- 2025
- Surface habitable
- 125 m²
- Étage
- Rez



