Attique à vendre - 1965 Savièse
Pourquoi vous aimerez ce bien
Balcon spacieux de 70 m²
Séjour lumineux et ouvert
Suite parentale avec salle de bain
Organiser une visite
Réserver une visite avec Schalcher aujourd'hui !
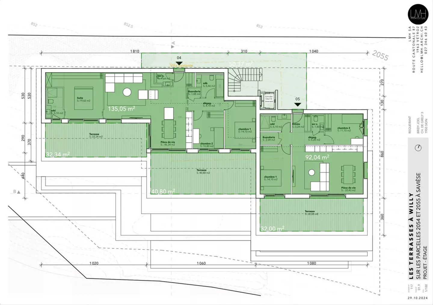
St germain à vendre magnifique attique
Situé dans la commune de Saint-Germain, cette nouvelle promotion de 5 appartements, dont la construction débutera prochainement, propose un superbe attique en vente d'environ 170 m² pondérés.
Cet attique de 4,5 pièces offre :
- 130 m² habitables,
- 2 chambres,
- 1 suite parentale avec salle de bain privative,
- 1 salle de bain avec baignoire,
- 1 WC visiteur,
- 1 cuisine entièrement équipée ouverte sur une salle à manger et un séjour lumineux.
Vous pourrez également profiter d'un balcon spacieux de pl...
Détails du bien
- Disponible à partir de
- Sur accord
- Pièces
- 4.5
- Année de construction
- 2025
- Surface habitable
- 135 m²
- Étage
- 2ème



