Attique à vendre - 1958 Uvrier
Pourquoi vous aimerez ce bien
Cuisine ouverte avec accès terrasse
Suite parentale avec salle de bain
Proche des commodités et nature
Organiser une visite
Réserver une visite avec Serhat aujourd'hui !
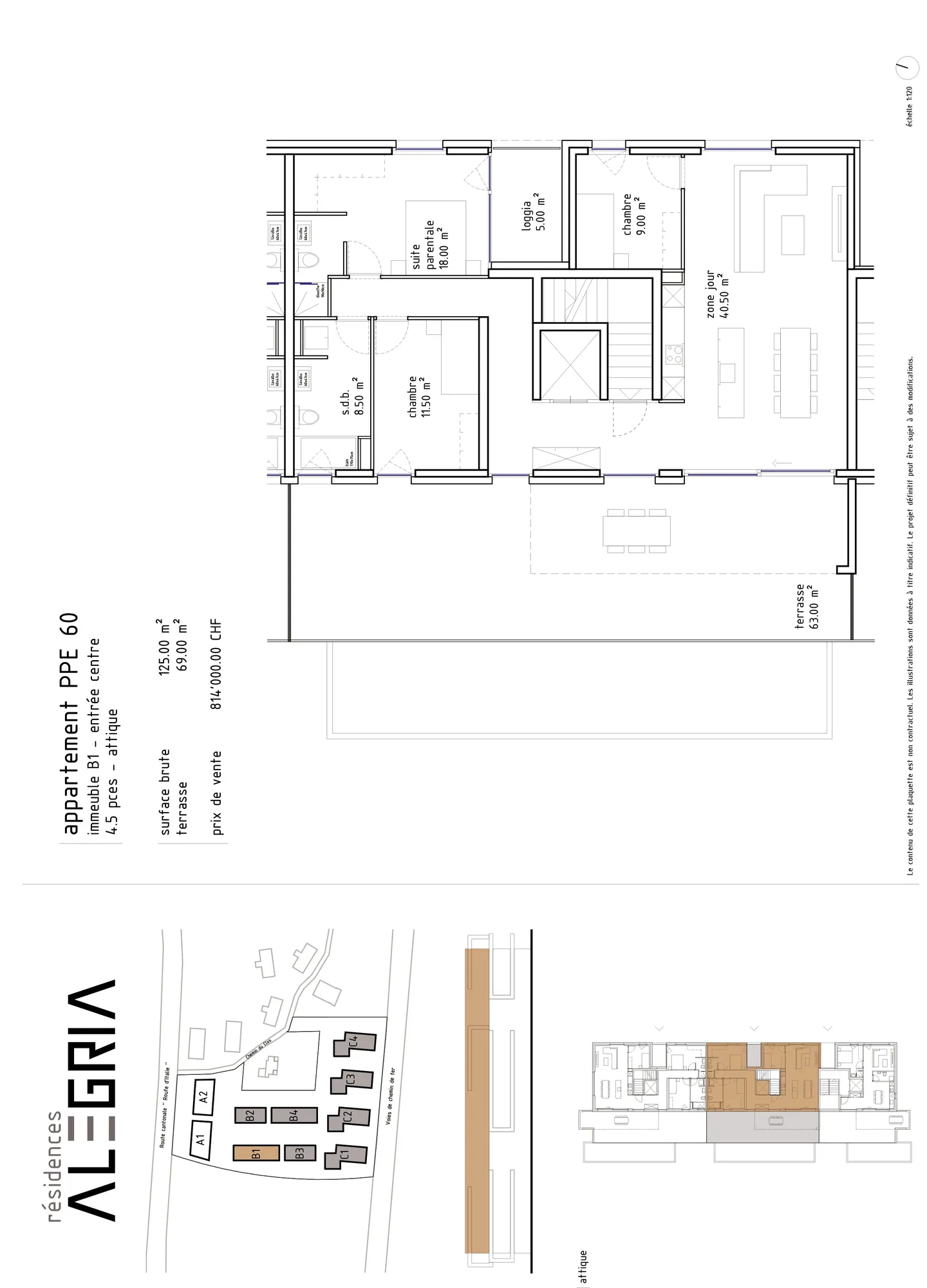
Appartement neuf de 4,5 pièces en attique Le projet Alegria est situé dans un quartier proche des commodités avec vue sur les montagnes.
Cet appartement en attique est constitué de :
* une entrée avec armoire murale
* une cuisine ouverte sur le séjour avec accès à la terrasse
* deux chambre à coucher
* une suite parentale avec salle de douche/WC privative et une loggia
* une salle de bain/WC avec coin buanderie
2 places de parc intérieures PS35 et PS79 (obligatoires) sont rattachées à l'appartement à...
Détails du bien
- Disponible à partir de
- Sur accord
- Pièces
- 4.5
- Année de construction
- 2026
- Surface habitable
- 125 m²
- Étage
- 2ème
- Étages du bâtiment
- 2




