Appartement Charmant avec Vue Montagne
Pourquoi vous aimerez ce bien
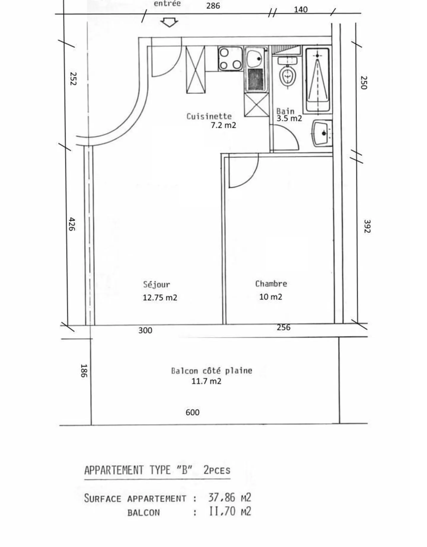
Balcon généreux de 11 m²
Vue imprenable sur le Rhône
Proche de la navette de ski
Organiser une visite
Réserver une visite aujourd'hui !
Exclusivité Valimmobilier
A 2 minutes de la place centrale de la Jorette, venez découvrir ce joli 2 pièces qui se situe au rez-de-chaussée de la Résidence "Le Cleuset". Cet appartement bénéficie d'un généreux balcon de 11 m2 et d'une vue sur la plaine du Rhône et les montagnes du Chablais. Il sera disponible à partir du 1er septembre 2026.
Sa situation est privilégiée à 50 minutes de Lausanne et à 2 minutes de la place centrale de la Jorette.Le bâtiment est dans un quartier tranquille à 2 minute...
Détails du bien
- Disponible à partir de
- 01.09.2026
- Pièces
- 2
- Année de construction
- 1978
- Année de rénovation
- 2010
- Surface habitable
- 39 m²
- Surface utilisable
- 39 m²
- Étage
- Rez




