Appartement à vendre - 1815 Clarens
Pourquoi vous aimerez ce bien
Vue imprenable sur le lac
Balcon spacieux de 12m2
Cuisine et salle de bain modernes
Organiser une visite
Réserver une visite aujourd'hui !
Lakeside - appartement rénové exclusif
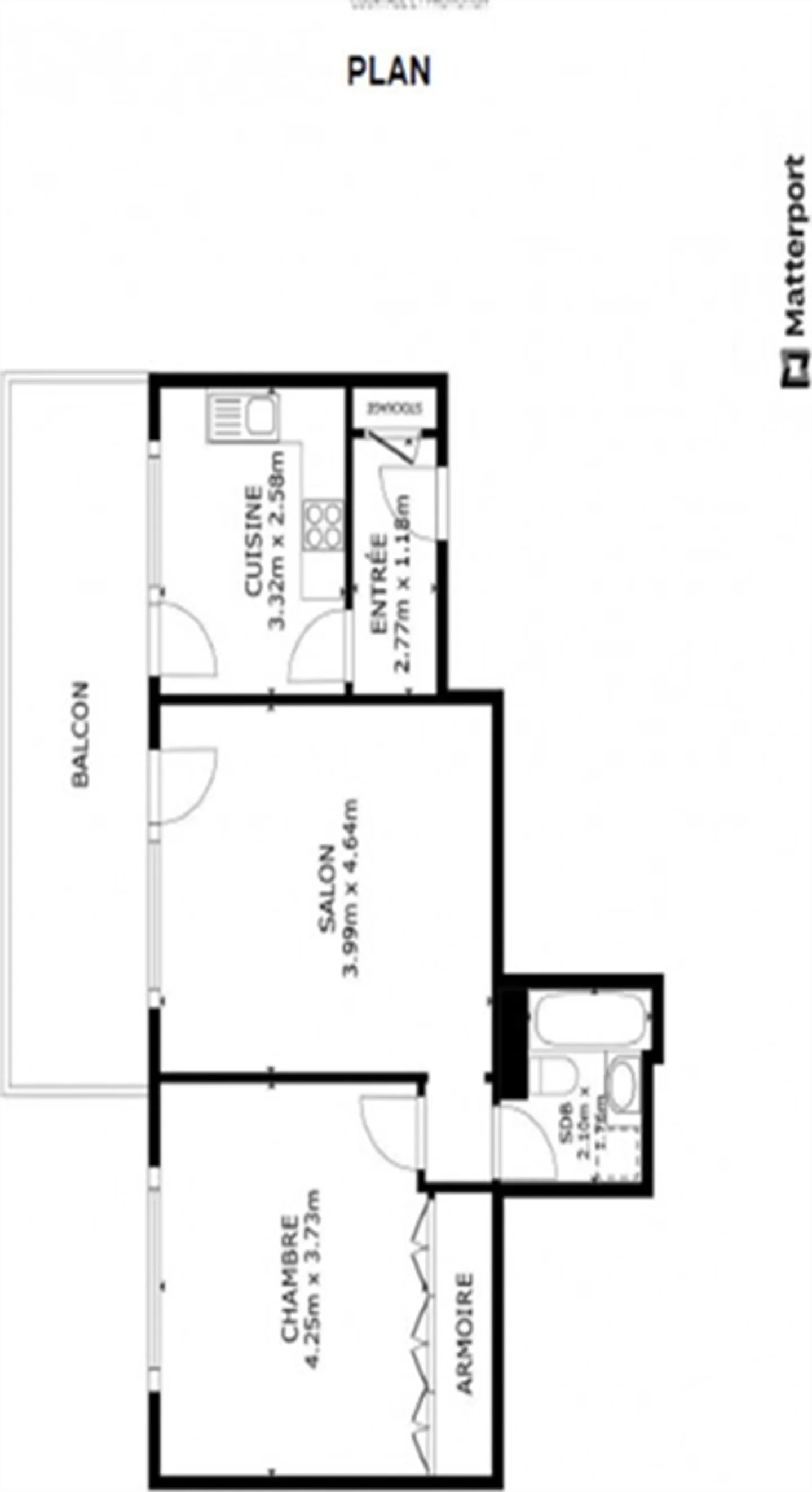
Cet appartement lumineux de 2,5 pièces d'environ 58m2 est situé à proximité immédiate du lac,
vue panoramique à couper le souffle sur le lac et les Dents-du-Midi. Il est orienté à l'est et au sud et dispose d'une surface habitable d'environ 58m2.
L'appartement dispose d'un salon lumineux et d'une cuisine fonctionnelle avec accès au balcon de 12m2.
Ce dernier offre de la place pour une table et des chaises afin de profiter de la nature et de la vue spectaculaire sur le lac Léman.
La chambre spaci...
Détails du bien
- Disponible à partir de
- Sur accord
- Pièces
- 2.5
- Année de construction
- 1967
- Étage
- 3ème



