Appartement à vendre - Gmeindstrasse 18, 9462 Montlingen
Pourquoi vous aimerez ce bien
Espace de vie lumineux
Balcon spacieux de 18 m²
Cuisine moderne intégrée
Organiser une visite
Réserver une visite avec Sandro aujourd'hui !
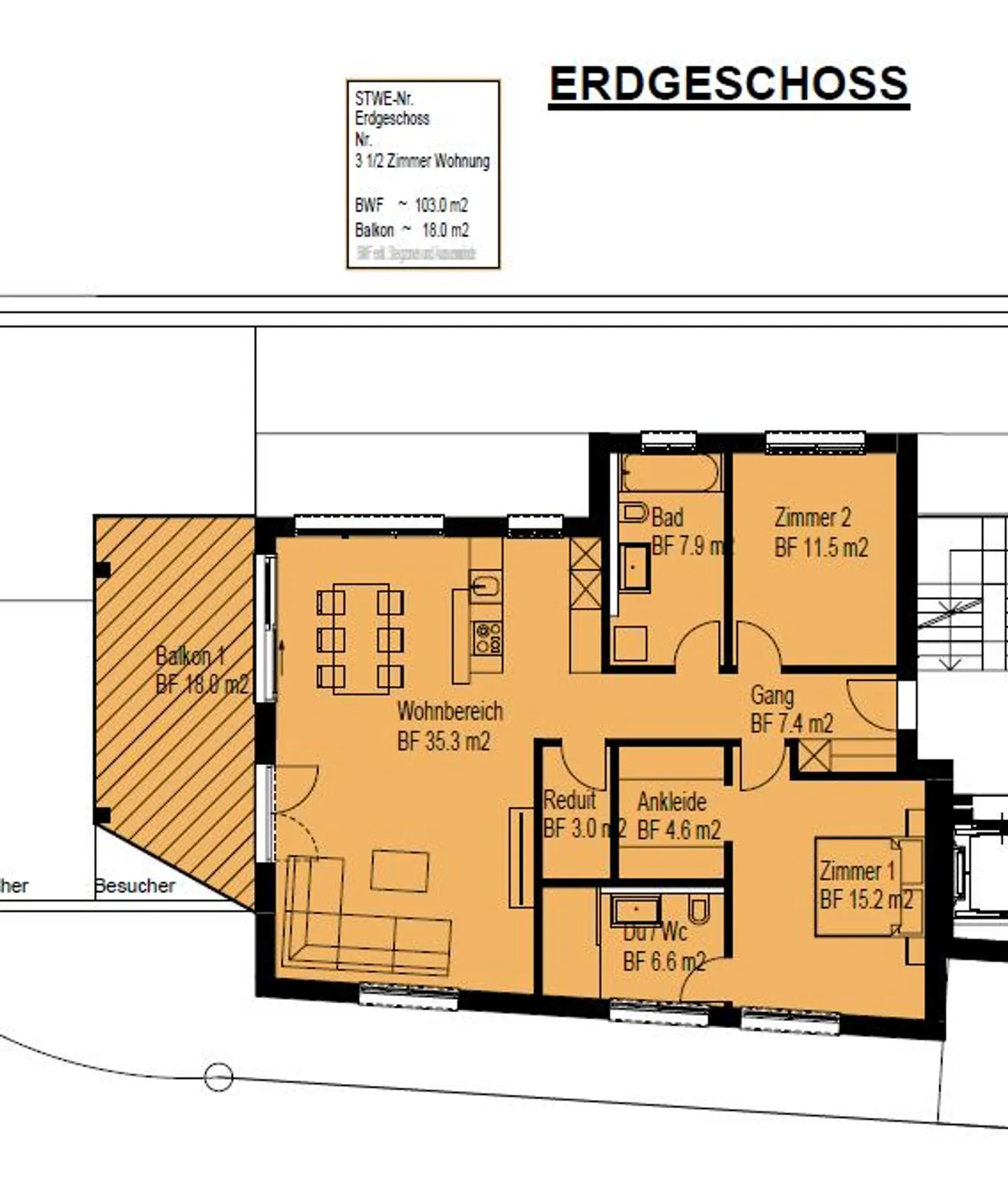
Construction neuve exclusive : appartement de 3,5 pièces avec balcon
Cet appartement élégant offre un espace de vie confortable de 103 m² et combine un mode de vie moderne avec une disposition réfléchie des pièces. Le lumineux salon et salle à manger forme le cœur de l'appartement et est inondé de lumière grâce à de grandes fenêtres, créant une atmosphère de vie amicale et accueillante.
La cuisine est équipée de manière moderne et intégrée de manière transparente dans la salle à manger. La spacieuse chambre principale offre un espace de retraite et de tranquilli...
Détails du bien
- Disponible à partir de
- Sur accord
- Pièces
- 3.5
- Année de construction
- 2026
- Surface habitable
- 103 m²



