Appartement à vendre - Steinrebenstrasse 170, 4153 Reinach BL
Pourquoi vous aimerez ce bien
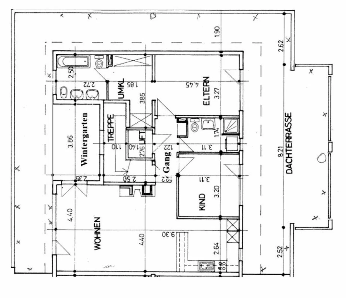
Terrasse de 100 m²
Jardin d'hiver lumineux
Accès direct par ascenseur
Organiser une visite
Réserver une visite avec Jeger aujourd'hui !
Appartement en attique de 3,5 pièces
Dans un emplacement calme et ensoleillé au 170 Steinrebenstrasse à Reinach, se trouve cet appartement en attique de 3,5 pièces avec beaucoup de lumière naturelle. L'espace généreux, le jardin d'hiver ainsi que la terrasse sur le toit d'environ 100 m² confèrent à l'appartement une atmosphère de vie ouverte et accueillante.
Le salon et la salle à manger impressionnent par leur sensation d'espace et la transition harmonieuse vers la cuisine ouverte entièrement équipée. Une cheminée assure des heures...
Détails du bien
- Disponible à partir de
- Sur accord
- Pièces
- 3.5
- Année de construction
- 1974
- Surface habitable
- 82 m²
- Étage
- 2ème



